N1.RU — новая улучшенная версия Е1.Недвижимость
Хорошо
Чтобы вернуться на старый сайт Е1.Недвижимость, перейдите по ссылке в нижней части сайта N1.RU
Понятно
Продажа
Аренда
Новостройки
Журнал
Компании
Оценка
Шаблоны документов
Налоговый вычет
Еще
Личный кабинет
Вход
Регистрация
Екатеринбург
Добавить объявление
Недвижимость в Екатеринбурге
Аренда
Коммерческая
Торговые площади
В избранном
В избранное
Поделиться
Пожаловаться
Напечатать
сдам торговые площади
, Коперника
, 33
108 630 ₽ в месяц
15 янв
Дата публикации объявления
Обн. 15 апр
Дата обновления объявления
8
Количество просмотров (+ просмотры за сегодня)
1700 ₽/м² в месяц
Параметры
Общая площадь
63,9 м
2
Этаж
1
Отдельный вход
есть
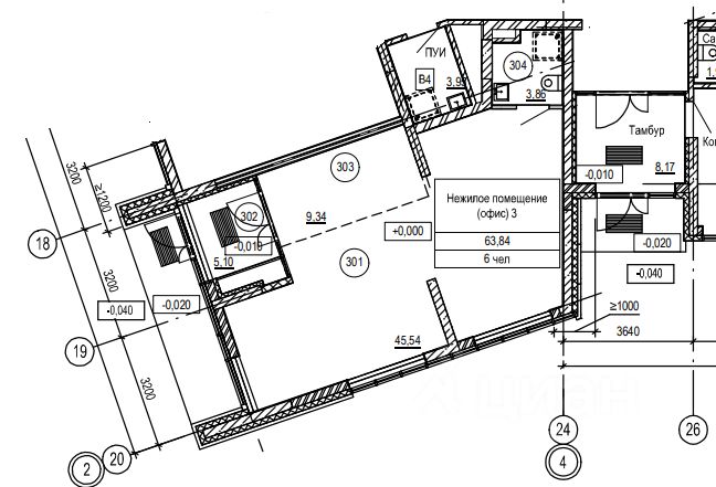
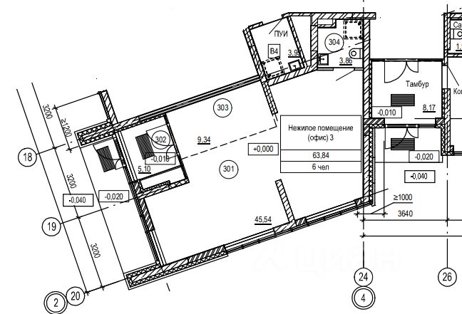
АРЕНДА помещения в новом ЖК ''Дружный'' по адресу: ул. Коперника, д. 33.
Помещение на первом этаже, с отдельным входом, правильной формы. Без отделки.
Звоните, ответим на все ваши вопросы и договоримся о просмотре