Складское помещение со встроенными офисами.
Стоимость 780 руб. за 1 м2 в месяц , НДС сверху.
Срок сдачи - декабрь 2025 года.
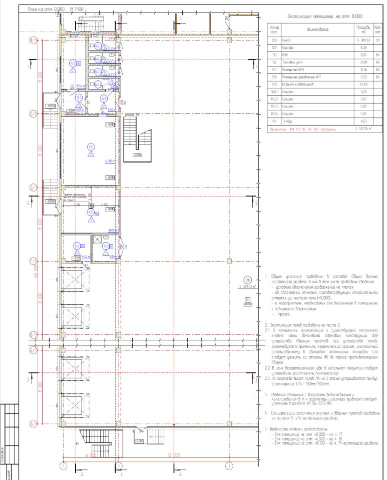
Площадь этажа в пределах пожарного отсека - 5 532 м2, чистая высота 12м
2 этаж 292м2
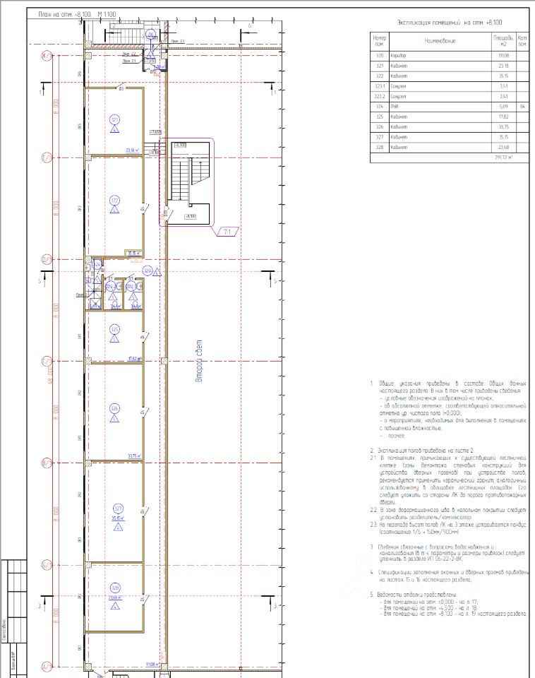
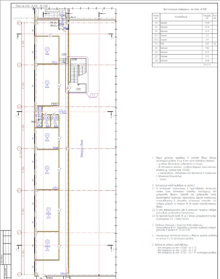
3 этаж 292м2
Уровень ответственности здания - II (нормальный),
Степень огнестойкости - II,
Класс функциональной пожарной опасности склада - Ф5.2,
Класс функциональной пожарной опасности встроенных административно-бытовых помещений - Ф4.3,
Категория здания - В.
Для выгрузки и отгрузки предусмотрены ворота подъемно-секционного типа, оснащенные герметизаторами проемов и уравнительными платформами. Отметка края пола от уровня благоустройства в районе загрузки равна 1,20 м.




