Если цена в объявлении изменится, мы сразу сообщим вам об этом на электронную почту.
Нажимая «Подписаться», вы соглашаетесь с правилами.
продам дом, Толмачева, 3414 200 000 ₽
6 янв
Дата публикации объявления
Обн. 2 апр
Дата обновления объявления
9
Количество просмотров (+ просмотры за сегодня)
123 478 ₽/м²
Чистая продажа
Термин "Чистая продажа" означает, что в квартире никто не прописан или
есть куда выписаться и вывезти вещи. Это лучший вариант для покупателя.
Вероятность срыва сделки минимальна.
Этажей1
Площадь участка11,3 соток
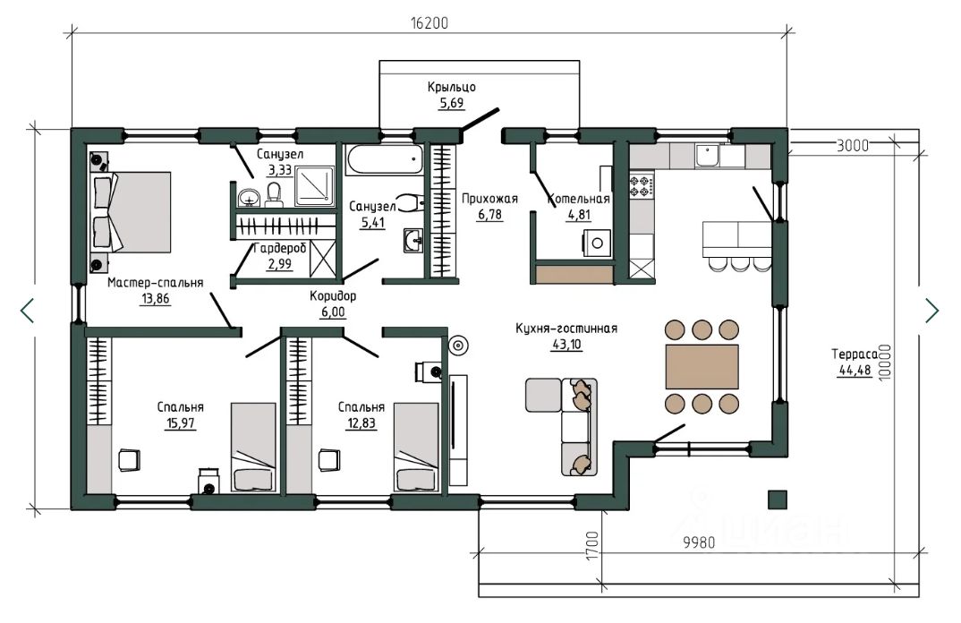
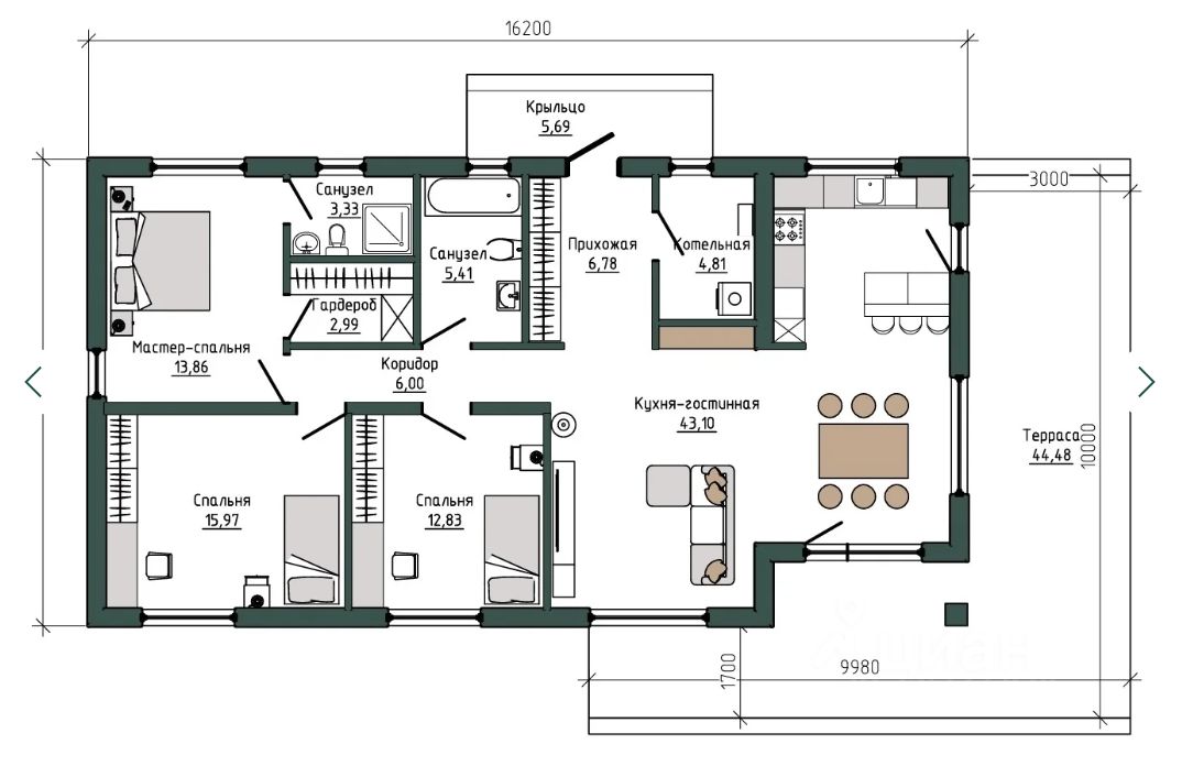
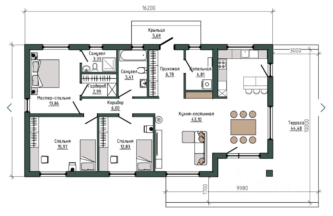
Общая площадь115 м2
ЭлектричествоЕсть
Газоснабжениецентральное
Дом Mikea 5 — топ-планировка 2025 года. 115 м² + терраса 40 м² в КП Рассоха Парк (закрытый посёлок на 90 домов). Один из самых востребованных проектов последних лет — Микея 5. Дом выбирают за продуманную планировку, чёткое зонирование и современный внешний вид. Формат идеально подойдёт для семьи до 5 человек. Дом расположен в коттеджном посёлке Рассоха Парк — тихом, закрытом и по-настоящему кулуарном месте для жизни.
Дом Mikea 5 — топ-планировка 2025 года. 115 м² + терраса 40 м² в КП Рассоха Парк (закрытый посёлок на 90 домов). Один из самых востребованных проектов последних лет — Микея 5. Дом выбирают за продуманную планировку, чёткое зонирование и современный внешний вид. Формат идеально подойдёт для семьи до 5 человек. Дом расположен в коттеджном посёлке Рассоха Парк — тихом, закрытом и по-настоящему кулуарном месте для жизни.
Планировка и пространство Площадь дома — 115 м² Терраса — 40 м² Главное преимущество проекта — грамотное разделение на активную и тихую зоны: • 3 спальни, одна из них — мастер-спальня • проходная гардеробная • собственный санузел • просторная кухня-гостиная (европланировка) • ванная комната • отдельная котельная Дом удобен для повседневной жизни: минимум коридоров, максимум полезного пространства.
Архитектура и стиль • фасады с отделкой из натурального дерева и декоративной штукатурки • современный, аккуратный внешний вид • дом выглядит стильно и актуально, не устаревает со временем Не случайно Mikea 5 считается одним из самых популярных проектов 2025 года.
Конструктив • материал стен — газобетонные блоки • дом тёплый, энергоэффективный • подходит для круглогодичного проживания
Коттеджный посёлок Рассоха Парк Редкий формат посёлка, который ценят семьи: • посёлок газифицирован • полностью асфальтированные дороги • закрытая территория, охрана, въезд по пропускам • всего около 90 домов — спокойно, без плотной застройки • продуктовые магазины в шаговой доступности • школьный автобус • удобный подъезд — весь путь до дома по асфальту • до ТРЦ Гринвич — около 40 минут
Кому подойдёт этот дом • семье с детьми • тем, кто ищет современную архитектуру • тем, кому важно зонирование и приватность • тем, кто хочет жить в небольшом, ухоженном посёлке, а не в массовой застройке
Звоните или пишите — расскажу подробнее, покажу планировку и посёлок. Mikea 5 — это удачный баланс комфорта, стиля и спокойной загородной жизни.