Если цена в объявлении изменится, мы сразу сообщим вам об этом на электронную почту.
Нажимая «Подписаться», вы соглашаетесь с правилами.
продам дом, Тимирязева, 3015 960 000 ₽
5 янв
Дата публикации объявления
Обн. 2 апр
Дата обновления объявления
8
Количество просмотров (+ просмотры за сегодня)
127 680 ₽/м²
Чистая продажа
Термин "Чистая продажа" означает, что в квартире никто не прописан или
есть куда выписаться и вывезти вещи. Это лучший вариант для покупателя.
Вероятность срыва сделки минимальна.
Этажей1
Площадь участка10 соток
Общая площадь125 м2
ЭлектричествоЕсть
Газоснабжениецентральное
Дом Второй свет в кулуарном КП Рассоха-Парк. Инфраструктура, газ, шикарная планировка, которая подарит ощущение свободы и пространства. Есть дома, куда просто приезжают. А есть дома, куда хочется возвращаться. Проект Второй свет — именно такой. Высокие потолки, панорамные окна, много света и ощущение свободы уже с порога. Дом расположен в коттеджном посёлке Рассоха-Парк — редкий формат кулуарного посёлка: всего около 90 домов, закрытая территория, въезд по пропускам, тишина и порядок.
Дом Второй свет в кулуарном КП Рассоха-Парк. Инфраструктура, газ, шикарная планировка, которая подарит ощущение свободы и пространства. Есть дома, куда просто приезжают. А есть дома, куда хочется возвращаться. Проект Второй свет — именно такой. Высокие потолки, панорамные окна, много света и ощущение свободы уже с порога. Дом расположен в коттеджном посёлке Рассоха-Парк — редкий формат кулуарного посёлка: всего около 90 домов, закрытая территория, въезд по пропускам, тишина и порядок.
Архитектура и атмосфера Главная особенность проекта — второй свет в гостиной: • потолки до 5 метров • большие панорамные окна • максимум естественного света • ощущение воздуха и объёма, которое невозможно передать на фото Дом выглядит современно и статусно, без перегруженных решений. Двускатная крыша, чистая геометрия и фасады с отделкой из натурального дерева делают его элегантным и визуально дорогим.
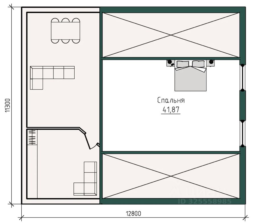
Планировка и пространство Дом продуман под комфортную жизнь семьи — без случайных метров. Первый этаж — 126 м²: • просторная кухня-гостиная со вторым светом • 4 спальни, включая: • мастер-спальню с гардеробом и собственным санузлом • ванная комната • котельная • удобные зоны хранения
Мансардный этаж — 40 м²: Пространство, которое можно использовать по своему сценарию: • кабинет • игровая • зона отдыха • домашний кинотеатр или хобби-комната
Терраса — 30 м² — идеальное продолжение дома в тёплое время года.
Конструктив • основание дома — газобетонные блоки • дом тёплый, энергоэффективный • подходит для круглогодичного проживания
Посёлок Рассоха-Парк Комфорт, который действительно ощущается в повседневной жизни: • газ до участка — низкие коммунальные платежи • асфальтированные дороги • уличное освещение • охрана, шлагбаум • магазины и сервисы в шаговой доступности • школьный автобус • ухоженные улицы и чистая экология • до ТЦ Гринвич — около 40 минут по прямому маршруту
Кому подойдёт этот дом • семьям, которым важны свет и пространство, а не просто метры • тем, кто хочет современную архитектуру, а не типовой проект • тем, кто ценит приватность и камерную среду, а не плотную застройку • тем, кто ищет дом на вырост — с мансардой и гибкими сценариями жизни
Звоните или пишите — организуем показ, покажем дом вживую и ответим на все вопросы. Дом Второй свет — это не просто планировка, это ощущение жизни.