Если цена в объявлении изменится, мы сразу сообщим вам об этом на электронную почту.
Нажимая «Подписаться», вы соглашаетесь с правилами.
продам дом, Ленина, 157 900 000 ₽
29 дек
Дата публикации объявления
Обн. 20 мая
Дата обновления объявления
29
Количество просмотров (+ просмотры за сегодня)
221 910 ₽/м²
Чистая продажа
Термин "Чистая продажа" означает, что в квартире никто не прописан или
есть куда выписаться и вывезти вещи. Это лучший вариант для покупателя.
Вероятность срыва сделки минимальна.
Этажей1
Площадь участка33 сотки
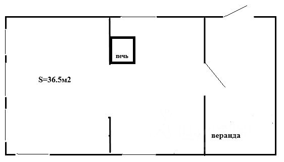
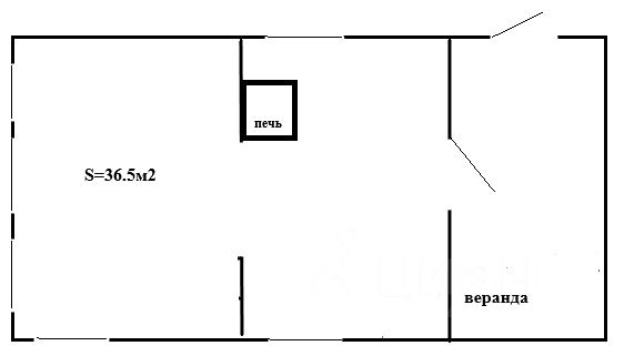
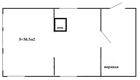
Общая площадь35,6 м2
Материал домадерево
ЭлектричествоЕсть
Газоснабжениенет
Объект N 196585. Продам жилой дом на центральной улице в д. Гусева Белоярского района. Расстояние от Екатеринбурга 41 км. Тюменский тракт. Дом деревянный, 35.6м2, пригоден для постоянного проживания, печное отопление (очаг). Площадь земельного участка, на котором стоит дом, 33 сотки, также к участку примыкает еще один участок 8.4 сотки, все в собственности, земли поселений. В жилом доме новая крыша, пластиковые окна, новый фундамент. Есть скважина, баня, яма, летний водопровод с горячей и холодной водой (вода подведена в дом и в баню), электричество. Газ проходит по границе участка. Туалет на улице. Установлен каркасный бассейн 3х6 м, глубина 1,35 м. Хороший сад с плодоносящими деревьями, три теплицы.
Объект N 196585. Продам жилой дом на центральной улице в д. Гусева Белоярского района. Расстояние от Екатеринбурга 41 км. Тюменский тракт. Дом деревянный, 35.6м2, пригоден для постоянного проживания, печное отопление (очаг). Площадь земельного участка, на котором стоит дом, 33 сотки, также к участку примыкает еще один участок 8.4 сотки, все в собственности, земли поселений. В жилом доме новая крыша, пластиковые окна, новый фундамент. Есть скважина, баня, яма, летний водопровод с горячей и холодной водой (вода подведена в дом и в баню), электричество. Газ проходит по границе участка. Туалет на улице. Установлен каркасный бассейн 3х6 м, глубина 1,35 м. Хороший сад с плодоносящими деревьями, три теплицы. Большой двор, выложен новой плиткой, новая закрытая беседка, все обнесено металлическим забором. На участке 33 сотки есть новый дом, 2х-этажный, на сваях, из бруса. Площадь 70 м2, утеплен, подведен под крышу, вставлены пластиковые окна, стоят сейф-двери. Приобретен котел для отопления. Осталось подвести электричество и воду, поставить на учёт. Дорога до населенного пункта - асфальт, по улице грунтовка. В деревне есть храм, пункт выдачи заказов, Пятерочка, речка практически за участком. Звоните, записывайтесь на просмотр. Торг обсуждаем.