Если цена в объявлении изменится, мы сразу сообщим вам об этом на электронную почту.
Нажимая «Подписаться», вы соглашаетесь с правилами.
продам коттедж, Красоты кп23 500 000 ₽
28 дек
Дата публикации объявления
Обн. 28 апр
Дата обновления объявления
22
(+2)
Количество просмотров (+ просмотры за сегодня)
Спецпредложение
Турбо x8
120 513 ₽/м²
Чистая продажа
Термин "Чистая продажа" означает, что в квартире никто не прописан или
есть куда выписаться и вывезти вещи. Это лучший вариант для покупателя.
Вероятность срыва сделки минимальна.
Этажей2
Площадь участка10,5 соток
Общая площадь195 м2
Материал домадерево
ЭлектричествоЕсть
Газоснабжениецентральное
Прекрасный живописный дом в коттеджном поселке КраСоты, что расположился в Юго-Восточном направлении, всего в каких-то 35 километрах от Екатеринбурга. Добраться до которого, можно по ровной асфальтированной трассе с Челябинского или Тюменского трактов. Дом для круглогодичного проживания. Жилой 2-х этажный дом, выполнен из клеёного бруса сечением 250х200мм, общей площадью 260кв.м, жилой площадью 195 кв.м: 1 этаж: Коридор 19.28кв.м. Гостиная с панорамными окнами 47.44кв.м. Мастер спальня 16.42кв.м. Санузел 9.4кв.м. Ванна 15.32кв.м Гардероб 10.84кв.м. Кладовая 7.74кв.м. Котельная 7.3кв.м. Терраса 35кв.м. Крыльцо 14.58кв.м
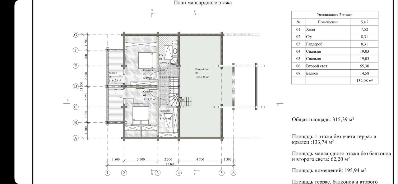
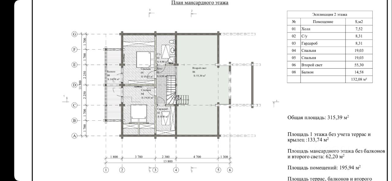
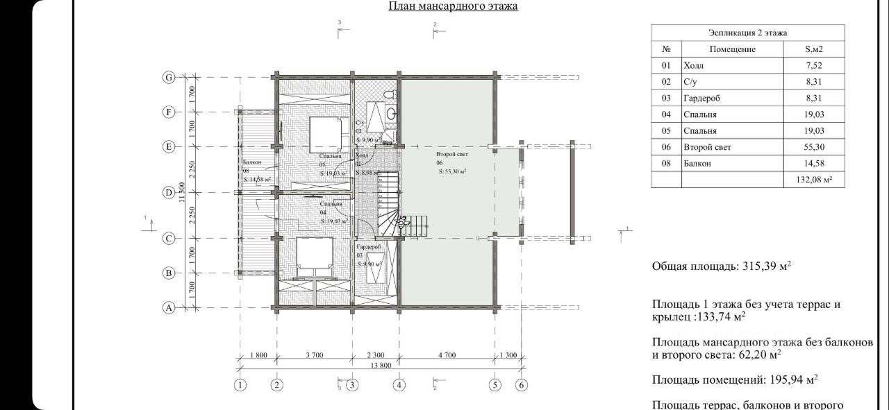
2 этаж: Две спальни каждая по 19.03кв.м панорамным окном и балконом с видом на лес.
Прекрасный живописный дом в коттеджном поселке КраСоты, что расположился в Юго-Восточном направлении, всего в каких-то 35 километрах от Екатеринбурга. Добраться до которого, можно по ровной асфальтированной трассе с Челябинского или Тюменского трактов. Дом для круглогодичного проживания. Жилой 2-х этажный дом, выполнен из клеёного бруса сечением 250х200мм, общей площадью 260кв.м, жилой площадью 195 кв.м: 1 этаж: Коридор 19.28кв.м. Гостиная с панорамными окнами 47.44кв.м. Мастер спальня 16.42кв.м. Санузел 9.4кв.м. Ванна 15.32кв.м Гардероб 10.84кв.м. Кладовая 7.74кв.м. Котельная 7.3кв.м. Терраса 35кв.м. Крыльцо 14.58кв.м
2 этаж: Две спальни каждая по 19.03кв.м панорамным окном и балконом с видом на лес. Санузел 9.9кв.м. Гардероб 9.9кв.м. Балкон 15кв.м
Участок 10.5 соток крайний граничит с вековым лесом. На участке много деревьев, сосны, березы. Дом имеет все условия чтобы почувствовать единение с природой при этом спокойно осенью в лесу собирать грибы. Территория котеджного поселка охраняется круглосуточно, пропускная система, дорога до дома полностью асфальтирована. Находится в полутора километрах от двуреченска.