id:8870.
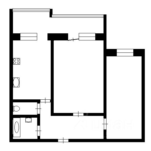
Лучшее предложение! Продам 2-х комнатную квартиру в районе новостроек на 5-ом этаже в кирпичном доме. Общая площадь 48 кв.м., уютная кухня 8 кв.м. Санузел раздельный, балкон. Окна пластиковые. Стены отштукатурены и оклеены качественными обоями, потолок натяжной. В квартире частично остается мебель. - Квартира без обременений, залогов, арестов. - Собственник один, совершеннолетний, не имеет исполнительных листов, банкротом не является. В шаговой доступности детский сад 34, школа 28,3, магазины, автостанция, поликлиника. Звоните и приходите на просмотр!!!










