Если цена в объявлении изменится, мы сразу сообщим вам об этом на электронную почту.
Нажимая «Подписаться», вы соглашаетесь с правилами.
продам 2-к, Бетонщиков, 5/7 стр.8 119 196 ₽
19 дек
Дата публикации объявления
Обн. 13 мая
Дата обновления объявления
17
Количество просмотров (+ просмотры за сегодня)
Топ
Турбо x4
141 944 ₽/м²
Чистая продажа
Термин "Чистая продажа" означает, что в квартире никто не прописан или
есть куда выписаться и вывезти вещи. Это лучший вариант для покупателя.
Вероятность срыва сделки минимальна.
Застройщик - Специализированный застройщик «ЛСР. Недвижимость-Урал», АО. Проектная декларация опубликована на сайте наш.дом.рф
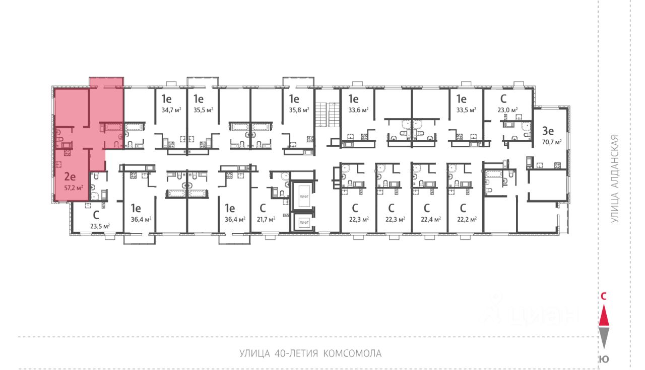
Продается 2-комн. квартира с европланировкой, площадью 57.2 м2 в панельной новостройке. Возможен вариант покупки с использованием ипотечных средств, есть рассрочка. Жилая площадь 22.9 м2, кухня 16.3 м2, чистовая отделка. Раздельных санузлов - нет, балконов - 1, лоджий - нет.
Квартира располагается на 7 этаже 15-этажного дома в ЖК Малахит. Застройщик - ЛСР, сдача дома - III квартал 2027 года. Парковка автомобилей - наземная. Инфраструктура: школа, детский сад, детские площадки, спортивные площадки, места для отдыха, супермаркет, коммерческие объекты.
Жилой комплекс ''Малахит'' - новый квартал площадью 25 га в микрорайоне ЖБИ Кировского района Екатеринбурга высотностью 10-26 этажей.
Продается 2-комн. квартира с европланировкой, площадью 57.2 м2 в панельной новостройке. Возможен вариант покупки с использованием ипотечных средств, есть рассрочка. Жилая площадь 22.9 м2, кухня 16.3 м2, чистовая отделка. Раздельных санузлов - нет, балконов - 1, лоджий - нет.
Квартира располагается на 7 этаже 15-этажного дома в ЖК Малахит. Застройщик - ЛСР, сдача дома - III квартал 2027 года. Парковка автомобилей - наземная. Инфраструктура: школа, детский сад, детские площадки, спортивные площадки, места для отдыха, супермаркет, коммерческие объекты.
Жилой комплекс ''Малахит'' - новый квартал площадью 25 га в микрорайоне ЖБИ Кировского района Екатеринбурга высотностью 10-26 этажей.
Высотность 10-26 этажей
Жилой комплекс ''Малахит'' - находится в микрорайоне ЖБИ Кировского района Екатеринбурга