Если цена в объявлении изменится, мы сразу сообщим вам об этом на электронную почту.
Нажимая «Подписаться», вы соглашаетесь с правилами.
продам 2-к, Карасьевская, 484 243 000 ₽
9 дек
Дата публикации объявления
Обн. вчера
Дата обновления объявления
132
Количество просмотров (+ просмотры за сегодня)
79 756 ₽/м²
Чистая продажа
Термин "Чистая продажа" означает, что в квартире никто не прописан или
есть куда выписаться и вывезти вещи. Это лучший вариант для покупателя.
Вероятность срыва сделки минимальна.
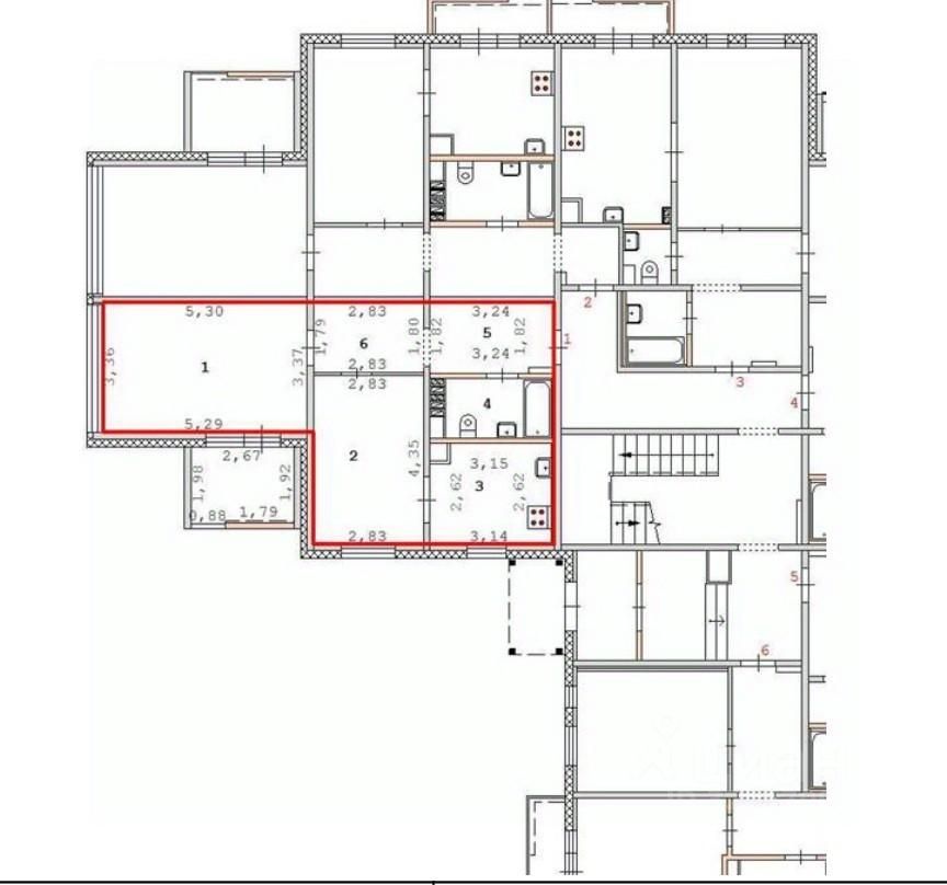
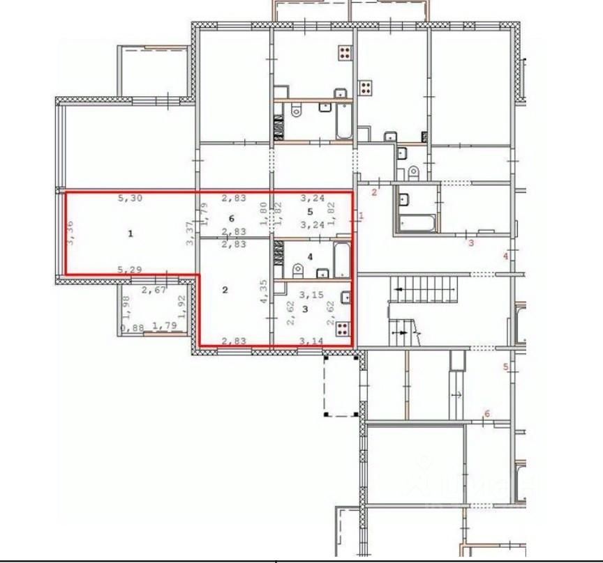
Продаётся двухкомнатная квартира общей площадью 53,2 кв. м, расположенная по адресу: Свердловская обл, г. Екатеринбург, поселок Мичуринский, ул. Карасьевская, д. 48. Количество комнат: 2 Этаж/этажность: 1/3 Тип дома: панельный Материал перекрытий: железобетонные Год постройки: 2014 г. Общая площадь: 53,20 кв. м Жилая площадь: 30,08 кв. м Площадь кухни: 8,25 кв. м Санузел: совместный Наличие балкона/лоджии: есть Наличие лифта: нет Инженерные коммуникации: есть В шаговой доступности находится школа, детский сад, аптека, магазины, парк. Существующие обременения: проживание третьих лиц. Способ продажи: прямая продажа, покупка за счет собственных средств, возможно приобретение за счет кредитных средств.
Продаётся двухкомнатная квартира общей площадью 53,2 кв. м, расположенная по адресу: Свердловская обл, г. Екатеринбург, поселок Мичуринский, ул. Карасьевская, д. 48. Количество комнат: 2 Этаж/этажность: 1/3 Тип дома: панельный Материал перекрытий: железобетонные Год постройки: 2014 г. Общая площадь: 53,20 кв. м Жилая площадь: 30,08 кв. м Площадь кухни: 8,25 кв. м Санузел: совместный Наличие балкона/лоджии: есть Наличие лифта: нет Инженерные коммуникации: есть В шаговой доступности находится школа, детский сад, аптека, магазины, парк. Существующие обременения: проживание третьих лиц. Способ продажи: прямая продажа, покупка за счет собственных средств, возможно приобретение за счет кредитных средств. Сделка может быть зарегистрирована с использованием сервиса электронной регистрации. Условия реализации можно уточнить по телефону.