Если цена в объявлении изменится, мы сразу сообщим вам об этом на электронную почту.
Нажимая «Подписаться», вы соглашаетесь с правилами.
продам 2-к, Шейнкмана, 1049 950 000 ₽
5 дек
Дата публикации объявления
Обн. 16 мая
Дата обновления объявления
86
Количество просмотров (+ просмотры за сегодня)
177 679 ₽/м²
Чистая продажа
Термин "Чистая продажа" означает, что в квартире никто не прописан или
есть куда выписаться и вывезти вещи. Это лучший вариант для покупателя.
Вероятность срыва сделки минимальна.
Квартира, удобная для жизни! Находится в инфраструктурном центре города, рядом - гимназия 5, лицей 173, клиника УГМК-здоровье, парк Зеленая роща.
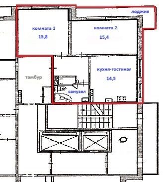
Трехкомнатная, улучшенной планировки, практично перепланирована в 2018 году в двухкомнатную. Результат большая, светлая кухня-гостиная, место для гардеробной, удобство использования (перепланировка узаконена).
В процессе ремонта заменена проводка, трубы, расширены окна, установлены регулируемые полы, это позволяет менять высоту пола и дает отличную тепло- и звукоизоляцию. Покрытие паркетная доска и ламинат.
Большая застекленная лоджия охватывает угловую комнату, создавая теплоэффект. Вообще в квартире очень тихо и тепло. А на случай жаркого лета в комнатах установлены кондиционеры.
Квартира, удобная для жизни! Находится в инфраструктурном центре города, рядом - гимназия 5, лицей 173, клиника УГМК-здоровье, парк Зеленая роща.
Трехкомнатная, улучшенной планировки, практично перепланирована в 2018 году в двухкомнатную. Результат большая, светлая кухня-гостиная, место для гардеробной, удобство использования (перепланировка узаконена).
В процессе ремонта заменена проводка, трубы, расширены окна, установлены регулируемые полы, это позволяет менять высоту пола и дает отличную тепло- и звукоизоляцию. Покрытие паркетная доска и ламинат.
Большая застекленная лоджия охватывает угловую комнату, создавая теплоэффект. Вообще в квартире очень тихо и тепло. А на случай жаркого лета в комнатах установлены кондиционеры.
Тамбур на 2 квартиры, соседи тихие. В доме сделан капитальный ремонт, заменены стояки и трубы, установлены новые лифты. Дом одноподъездный, и жильцы друг друга знают. Двор огорожен, въезд через ворота.
Квартира без обременений, без детских долей, владеет супружеская пара с 2003 года.
Уважаемые покупатели! Пожалуйста, звоните! на сообщения не всегда могу ответить