Если цена в объявлении изменится, мы сразу сообщим вам об этом на электронную почту.
Нажимая «Подписаться», вы соглашаетесь с правилами.
продам коттедж, Летняя, 112 290 000 ₽
1 дек
Дата публикации объявления
Обн. 12 мая
Дата обновления объявления
10
Количество просмотров (+ просмотры за сегодня)
54 866 ₽/м²
Чистая продажа
Термин "Чистая продажа" означает, что в квартире никто не прописан или
есть куда выписаться и вывезти вещи. Это лучший вариант для покупателя.
Вероятность срыва сделки минимальна.
Этажей1
Площадь участка11 соток
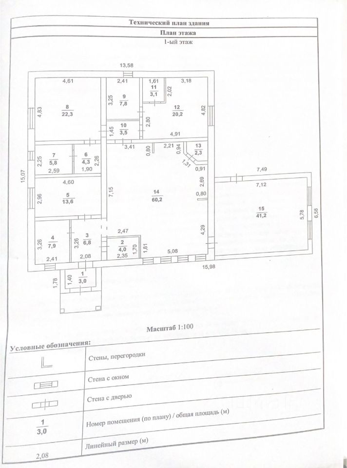
Общая площадь224 м2
Материал домакирпич
ЭлектричествоЕсть
Газоснабжениецентральное
Продается современный дом с земельным участком (10,64 сотки) в коттеджном поселке Резиденция п.Первомайский. Всего в 15-20 минутах езды от города по хорошей, освещенной федеральной трассе в Челябинском направлении. Охрана поселка 24/7, видеонаблюдение, забор по всему периметру КП. В поселке есть вся инфраструктура: магазины, аптека, пункты выдачи заказов, садик, школа. Одноэтажный дом площадью 223,7 м2, окончание строительства сентябрь 2023 года. Дом строился из качественных материалов профессиональными бригадами (есть фото с этапами строительства). Продается в черновой отделке! Характеристики: Материал стен: кирпич, толщина кладки 510мм в два кирпича, несущие стены 380мм в полтора кирпича, перегородки в 1 кирпич. Перекрытия: ж/б плиты изготовленные на заказ.
Продается современный дом с земельным участком (10,64 сотки) в коттеджном поселке Резиденция п.Первомайский. Всего в 15-20 минутах езды от города по хорошей, освещенной федеральной трассе в Челябинском направлении. Охрана поселка 24/7, видеонаблюдение, забор по всему периметру КП. В поселке есть вся инфраструктура: магазины, аптека, пункты выдачи заказов, садик, школа. Одноэтажный дом площадью 223,7 м2, окончание строительства сентябрь 2023 года. Дом строился из качественных материалов профессиональными бригадами (есть фото с этапами строительства). Продается в черновой отделке! Характеристики: Материал стен: кирпич, толщина кладки 510мм в два кирпича, несущие стены 380мм в полтора кирпича, перегородки в 1 кирпич. Перекрытия: ж/б плиты изготовленные на заказ. Фундамент: монолитная ж/б плита 300 мм, каркас из 12мм арматуры. Сделана хорошая подушка с использованием Planter. Кровля: Плоская кровля из ПВХ мембраны Ecoplast с утеплением до 450мм с разуклоном от Технониколь. Оконные и дверные проемы выполнены качественными конструкциями из евро дерева по финской технологии с немецкой фурнитурой RotoNT. Выполнены закладные на каждом проеме под установку наружных рольставней. Выполнены закладные для монтажа беседки. Высота потолков 3,5 метра. Кровля: утепленная плоская с ПВХ мембраной. Планировка: Дом спроектирован по европейской технологии без коридоров, которые отнимают существенную площадь. Большая кухня-гостиная 60.2м2 с помещением для хранения продуктов. Две спальни 20,2 м2 и 22,3м2 с индивидуальными санузлами и гардеробными. Гостевая комната 13,6 м2 с гостевым санузлом в котельной. Гардеробная в прихожей. Помещение свободного назначения (под бассейн/сауну/спортзал/кинотеатр)Размер: 6,5х7,5м . Коммуникации: Электричество 15 кВт Газ Локальная канализация (Септик Урал 4-био, технический и дренажный колодцы) Скважина глубина 92 метра. Площадь участка 10,64 сотки. Категория земель: Земли населенных пунктов. Участок ровный, правильной формы, поднят по периметру на 60 см. Огорожен капитальным забором из жби плит с декоративными столбами, окрашен в белый цвет. На территории оборудованная бытовка. Установлены откатные ворота с электроприводом Allutech 500 в 2023 году. Имеется гараж размером 6х9м, размер въезда 4 метра Один взрослый собственник. Без обременений.