Если цена в объявлении изменится, мы сразу сообщим вам об этом на электронную почту.
Нажимая «Подписаться», вы соглашаетесь с правилами.
продам коттедж, Весенняя30 000 000 ₽
12 ноя
Дата публикации объявления
Обн. 14 ноя
Дата обновления объявления
24
Количество просмотров (+ просмотры за сегодня)
180 614 ₽/м²
Чистая продажа
Термин "Чистая продажа" означает, что в квартире никто не прописан или
есть куда выписаться и вывезти вещи. Это лучший вариант для покупателя.
Вероятность срыва сделки минимальна.
Этажей2
Площадь участка9,44 соток
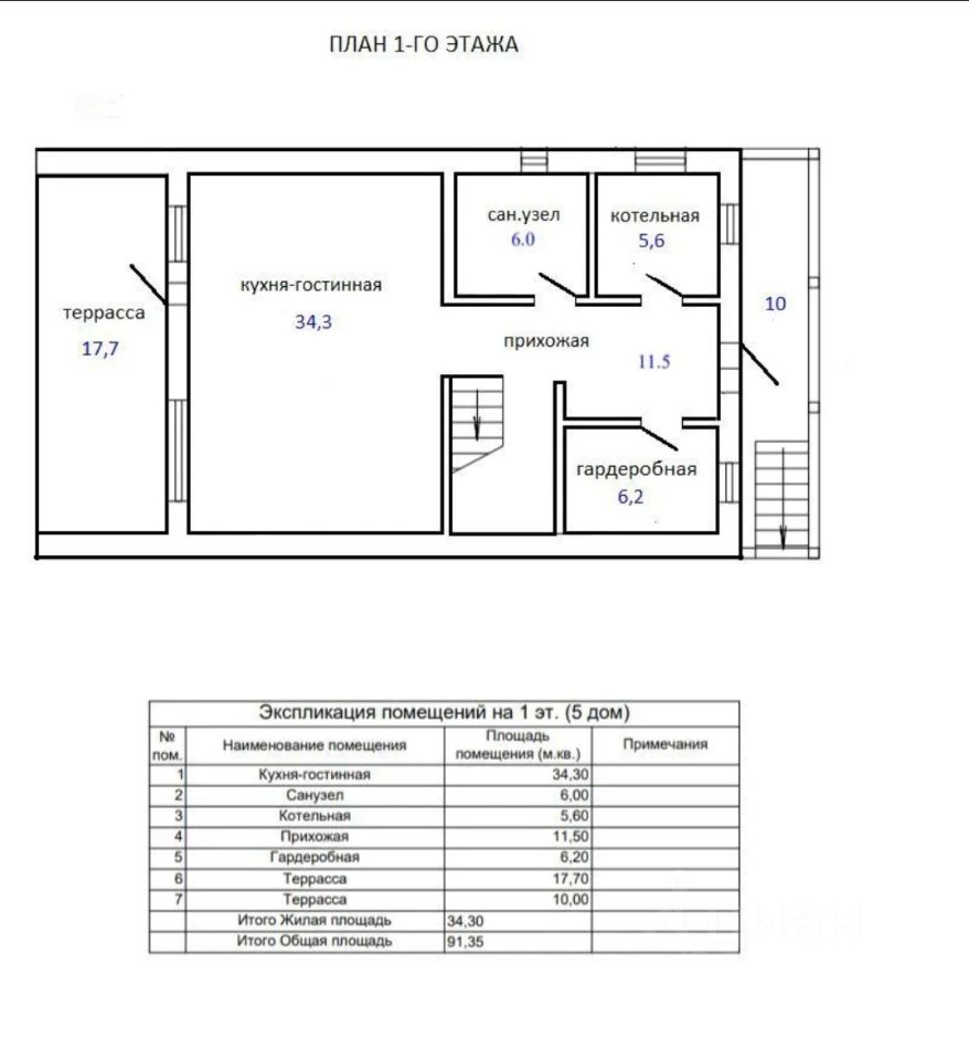
Общая площадь166,1 м2
ЭлектричествоЕсть
Газоснабжениецентральное
Индивидуальный жилой дом выполнен в стиле Барнхаус, расположен в г.Екатеринбурге в Чкаловском районе между улицами Герцена-Весенней. Дом двухэтажный, высотой 6,5 м. Общая площадь всех частей дома составляет 166,1 м² с общей площадью жилого помещения 131,4 м².Частный сектор вокруг проживаю соседи, участок граничит с лесом.
Приусадебный земельный участок площадью 9,44 соток имеет заезд с ул. Весенней. Благоустройство участка ограничено только фантазией архитектора.
Фундамент дома врезан в склон рельефа, возведена на скальном основании, представляет из себя гидроизолированную монолитную железобетонную плиту.
Индивидуальный жилой дом выполнен в стиле Барнхаус, расположен в г.Екатеринбурге в Чкаловском районе между улицами Герцена-Весенней. Дом двухэтажный, высотой 6,5 м. Общая площадь всех частей дома составляет 166,1 м² с общей площадью жилого помещения 131,4 м².Частный сектор вокруг проживаю соседи, участок граничит с лесом.
Приусадебный земельный участок площадью 9,44 соток имеет заезд с ул. Весенней. Благоустройство участка ограничено только фантазией архитектора.
Фундамент дома врезан в склон рельефа, возведена на скальном основании, представляет из себя гидроизолированную монолитную железобетонную плиту.
Стены домов выполнены из пенобетонных блоков толщиной 400 мм на специальном клеящем составе, исключающем возникновение мостиков холода и соответствует требованиям стандартов теплосопротивления.
Кровля дома мансардного типа с пароизоляцией, ветрозащитой, теплоизоляцией 200 мм с покрытием из профнастила толщиной 0,7 мм.
Оконные системы выполнены в пол (50% жилых помещений), двухкамерные с покрытием от теплопотерь.
Перегородки помещений выполнены из кирпича и газозолоблока для исключения шума внутри помещений.
Внутренние поверхности подготовлены для финишной отделки.
Инженерное обеспечение жилого дома включает в себя:
1.Водоснабжение -от скважины глубиной 64 м с дебетом 6 м.куб/час. Скважина оборудована насосом, оголовком, трубопровод - нагревающим кабелем.
3.Электроснабжение - дом обеспечен подключенной мощностью нагрузки 26 кВт при номинальном токе 40 А от трехфазной сети напряжением 0,4 кВ, принадлежащей АОЕЭСК. Установлен резервный электрический котел
4.Газоснабжение - подключен газ. В теплогенераторном помещении установлен напольный газовый котел (Baxi SLIM 1.300 iN) с открытой камерой сгорания мощностью 22 кВт и максимальным расходом природного газа - 2,69 м.куб/час.
5. Отопление от газового котла(+ установлен резервный электрический) 1 этаж водяной теплый пол, 2 этаж радиаторы