Если цена в объявлении изменится, мы сразу сообщим вам об этом на электронную почту.
Нажимая «Подписаться», вы соглашаетесь с правилами.
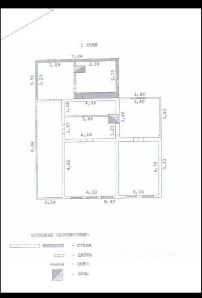
продам дом, Красный Октябрь, 443 550 000 ₽
10 ноя
Дата публикации объявления
Обн. 17 апр
Дата обновления объявления
10
Количество просмотров (+ просмотры за сегодня)
41 279 ₽/м²
Чистая продажа
Термин "Чистая продажа" означает, что в квартире никто не прописан или
есть куда выписаться и вывезти вещи. Это лучший вариант для покупателя.
Вероятность срыва сделки минимальна.
Этажей1
Площадь участка15 соток
Общая площадь86 м2
Материал домадерево
ЭлектричествоЕсть
Газоснабжениенет
Продается уютный загородный дом на участке 15.42 соток, рп. Белоярский ул. Красный Октябрь, 44. Дом общей площадью 86.4 м2 : Совмещённый санузел с душевой кабиной. Вода в доме от собственной скважины. Установлен водонагреватель. Отопление - электрокотел. Для новых хозяев остаётся кухонный гарнитур. На участке: Баня из блоков с входом с веранды. Гараж со смотровой ямой. 2 погреба для хранения урожая и заготовок. 2 теплицы из поликарбоната. Прочная ограда по периметру. Открытая веранда и уличные качели. Важная информация: Участок правильной прямоугольной формы - ИЖС. Один взрослый собственник. Все коммуникации автономные.
Продается уютный загородный дом на участке 15.42 соток, рп. Белоярский ул. Красный Октябрь, 44. Дом общей площадью 86.4 м2 : Совмещённый санузел с душевой кабиной. Вода в доме от собственной скважины. Установлен водонагреватель. Отопление - электрокотел. Для новых хозяев остаётся кухонный гарнитур. На участке: Баня из блоков с входом с веранды. Гараж со смотровой ямой. 2 погреба для хранения урожая и заготовок. 2 теплицы из поликарбоната. Прочная ограда по периметру. Открытая веранда и уличные качели. Важная информация: Участок правильной прямоугольной формы - ИЖС. Один взрослый собственник. Все коммуникации автономные. ____________________________________ Сделку сопровождает юрист с высшим образованием, что обеспечивает безопасность сделки. Показы проводятся по предварительной записи. Этот вариант идеален для тех, кто мечтает о жизни вдали от городской суеты, наслаждаясь природой и комфортом собственного жилья! ID объекта в нашей базе: 455