Представляем дом, где каждый элемент создан с вниманием к деталям. Расположен в новом коттеджном посёлке между с. Малобруснянским и д. Гусево — всего в 30 минутах от Екатеринбурга.
Что делает этот дом особенным:
- Индивидуальный проект: ни один дом в посёлке не повторяется.
- Качество строительства: монолитная плита, деревянные стены, тёплые полы и внутрипольные конвекторы.
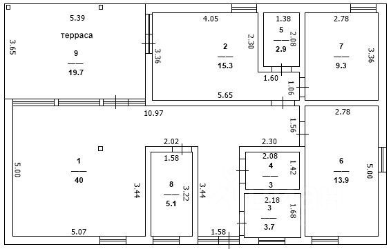
- Продуманная планировка: мастерспальня с выходом на террасу, гардеробные в каждой комнате, 2 санузла.
- Комфортная территория: огороженный участок, раздвижные ворота, парковка на 2 машины.
Посёлок только набирает обороты — сейчас самая привлекательная цена! Приглашаем на просмотр в любое удобное время. Семейная, it, сельская ипотека!











