Если цена в объявлении изменится, мы сразу сообщим вам об этом на электронную почту.
Нажимая «Подписаться», вы соглашаетесь с правилами.
продам 1-к, 40-летия Комсомола, 2/36 320 000 ₽
16 окт
Дата публикации объявления
Обн. 22 мая
Дата обновления объявления
3
Количество просмотров (+ просмотры за сегодня)
Спецпредложение
Турбо x8
235 821 ₽/м²
Чистая продажа
Термин "Чистая продажа" означает, что в квартире никто не прописан или
есть куда выписаться и вывезти вещи. Это лучший вариант для покупателя.
Вероятность срыва сделки минимальна.
Застройщик - Специализированный застройщик «Кварталы комсомола», ООО. Проектная декларация опубликована на сайте наш.дом.рф
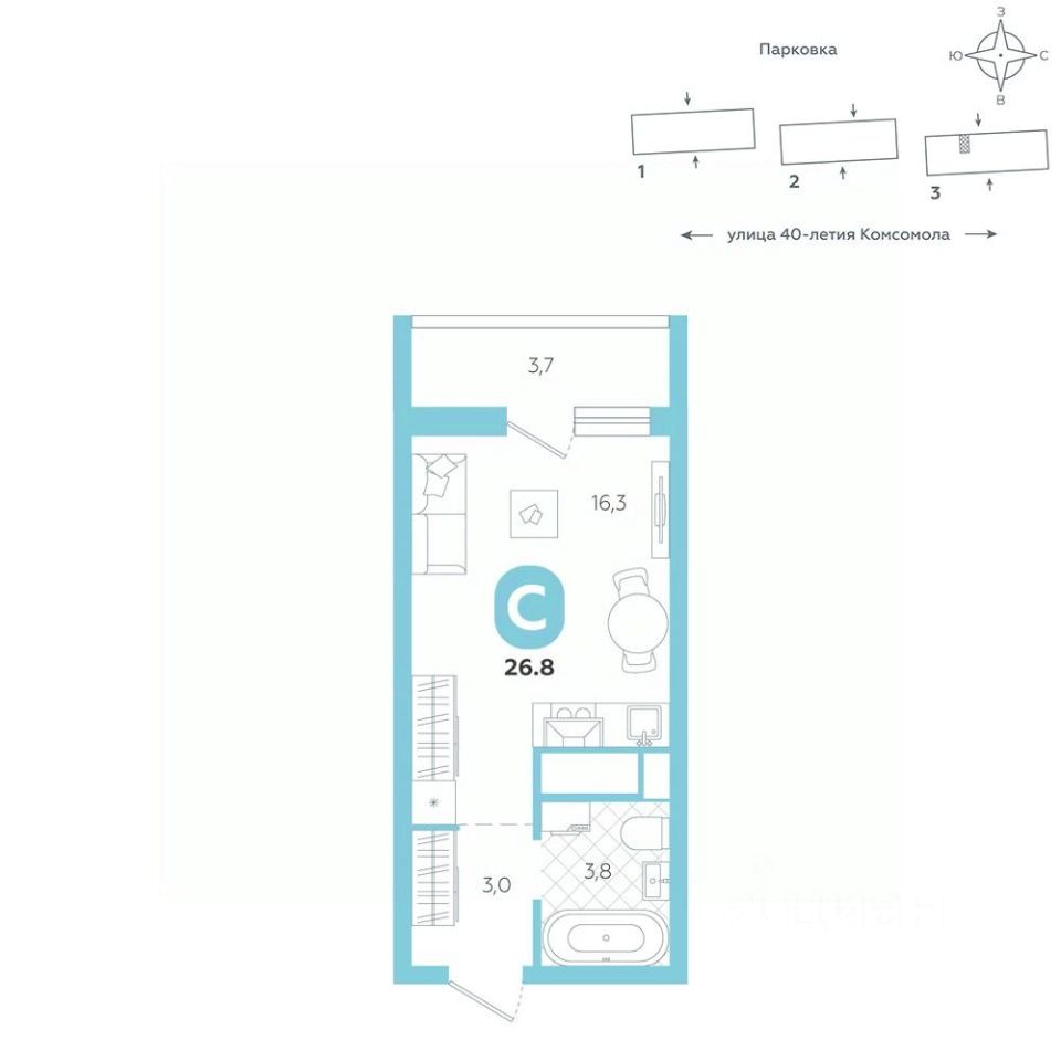
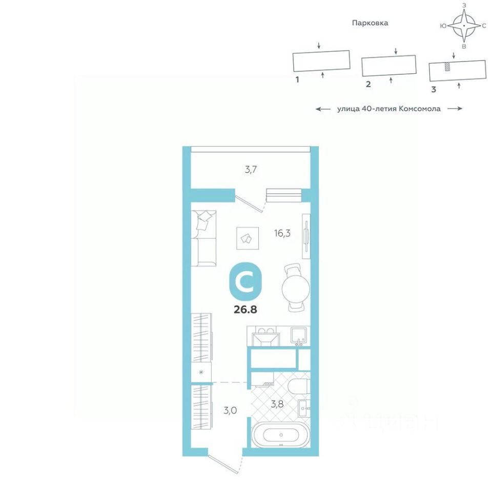
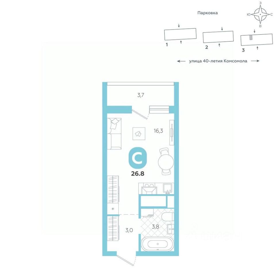
Эргономичная квартира-студия с лоджией и перспективой роста в цене — отличный выбор для тех, кто делает первые шаги к самостоятельной жизни. Общая площадь квартиры 26,8 кв.м., и ее умная планировка позволяет создать атмосферу, полностью отражающую ваши стиль и предпочтения.
Квартира располагается в ЖК ''Комсомольский'' — жилом комплексе комфорт-класса. Здесь вы будете наслаждаться беззаботной жизнью, ведь ваш дом — воплощение практичности, безопасности и надежности. Для удобства предусмотрены колясочные на первых этажах домов, где можно оставить велосипеды и коляски в тепле. За безопасность отвечают система электронных ключей и видеонаблюдение. Еще здесь собственная котельная, поэтому в доме всегда будут горячая вода и оплата счетов только за фактически потребленное тепло.
Эргономичная квартира-студия с лоджией и перспективой роста в цене — отличный выбор для тех, кто делает первые шаги к самостоятельной жизни. Общая площадь квартиры 26,8 кв.м., и ее умная планировка позволяет создать атмосферу, полностью отражающую ваши стиль и предпочтения.
Квартира располагается в ЖК ''Комсомольский'' — жилом комплексе комфорт-класса. Здесь вы будете наслаждаться беззаботной жизнью, ведь ваш дом — воплощение практичности, безопасности и надежности. Для удобства предусмотрены колясочные на первых этажах домов, где можно оставить велосипеды и коляски в тепле. За безопасность отвечают система электронных ключей и видеонаблюдение. Еще здесь собственная котельная, поэтому в доме всегда будут горячая вода и оплата счетов только за фактически потребленное тепло.
ПРЕИМУЩЕСТВА ЖК
На этаже 14 квартир Красивые и функциональные парадные с мягкой и стильной зоной для отдыха, книгообменником, встроенными почтовыми ящиками и нишами для сумок Колясочные с доступом по ключу IP-домофоны Тихие лифты с плавным ходом
О ПРОЕКТЕ
ЖК ''Комсомольский'' строится в спокойном Кировском районе Екатеринбурга в границах улиц Сыромолотова — Рассветная — 40-лет Комсомола. Комплекс состоит из трех домов переменной этажности, которые выделяются динамичными линиями, выразительными фасадами и стильными лоджиями.
ЛОКАЦИЯ
Всё, что необходимо для повседневной жизни, находится недалеко от дома: школы, детские сады, продуктовые магазины, фитнес-клубы. Дорога до центра города на машине займет всего 10 минут — достаточно повернуть с улицы 40-летия Комсомола на улицу Владимира Высоцкого. Рядом с этим перекрестком начинается ''Тропа здоровья'' — большой терренкур вдоль ''Каменных палаток''.
10 мин до центра 3-4 минуты до школы No 82, гимназии No 176 4-5 минут до детских садов No 208, No 583, 266 20 мин до Свердловского областного медицинского колледжа и Центральной городской больницы No 7
В рамках стратегического развития района на первых этажах домов появятся коммерческие помещения, в которых откроются магазины и кафе.
Следует учесть, что к 2030 году в Кировском районе планируется формирование регионального рекреационно-оздоровительного кластера, строительство ветки метро, расширение и модернизация старых промышленных зон социальной и бизнес-инфраструктуры, что приведет к созданию комфортной среды для жизни.
Кроме того, в стратегию входит развитие Шарташского лесного парка как центра регионального и международного туризма.
СПОСОБЫ ПОКУПКИ
Ипотека: подберем выгодные условия в нескольких банках, чтобы вы могли выбрать лучшее Материнской капитал: можно использовать в качестве первоначального взноса Рассрочка: платите частями без % Сертификаты: позволяют оплатить часть стоимости квартиры
О КОМПАНИИ
''Паритет Девелопмент'' — это современный и ответственный подход к реализации проектов в сфере жилищного строительства. Компания формирует среду, способную создать новое качество жизни для клиентов, поэтому каждый проект имеет свою философию — не просто квадр