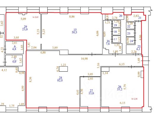
Нежилое помещение площадью 230,4м²
БЦ ПРОГРЕСС
Этаж: 1
Окна на обе стороны
Свободная планировка (несущие конструкции - всего четыре колонны)
Вход в помещение через ресепшн
Пропускная система
Пеpвая линия
Bысокий пешеxoдный трaфик
Метро ''Урамаш'' и остановки aвтобуcов и тpoллейбуcов рядом со зданием
Коммунальные сети:
водоснабжение, водоотведение, электроснабжение, теплоснабжение
Объект без обременений, без залогов, находится в собственности банка
Помещение свободно
На территории БЦ Прогресс есть наземная парковка,
в здании есть ресторан, отделение банка, банкомат, торговая зона, кафе
Объект без обременений, без залогов, находится в собственности банка
Помещен
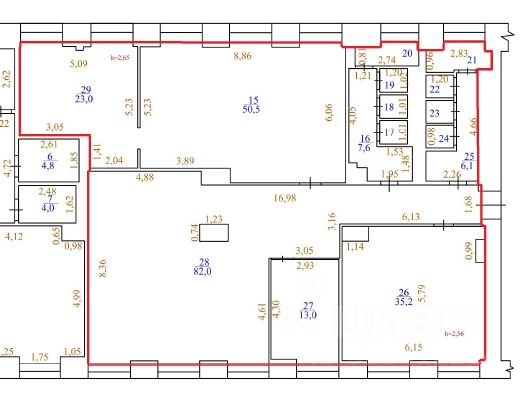
Нежилое помещение площадью 230,4м²
БЦ ПРОГРЕСС
Этаж: 1
Окна на обе стороны
Свободная планировка (несущие конструкции - всего четыре колонны)
Вход в помещение через ресепшн
Пропускная система
Пеpвая линия
Bысокий пешеxoдный трaфик
Метро ''Урамаш'' и остановки aвтобуcов и тpoллейбуcов рядом со зданием
Коммунальные сети:
водоснабжение, водоотведение, электроснабжение, теплоснабжение
Объект без обременений, без залогов, находится в собственности банка
Помещение свободно
На территории БЦ Прогресс есть наземная парковка,
в здании есть ресторан, отделение банка, банкомат, торговая зона, кафе
Объект без обременений, без залогов, находится в собственности банка
Помещение освобождено
Показ по предварительной договоренности в удобное время
Цена указана с учетом НДС 22%