Термин "Чистая продажа" означает, что в квартире никто не прописан или
есть куда выписаться и вывезти вещи. Это лучший вариант для покупателя.
Вероятность срыва сделки минимальна.
Застройщик - Специализированный застройщик «УГМК-Макаровский», АО. Проектная декларация опубликована на сайте наш.дом.рф
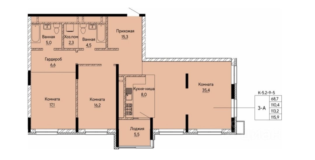
Просторная двухкомнатная квартира (евротрешка) в ЖК Макаровский. В последней камерной очереди в ЖК Макаровский продается квартира на 9 этаже. В доме всего 59 квартир. Ключи получены от застройщика в декабре 2025г.
Квартира от застройщика, можно делать любой ремонт на ваш вкус. В доме предусмотрены места для размещения наружных блоков кондиционеров, установлен четырехступенчатый фильтр воды, приточная система вентиляции Tion с подогревом и фильтрацией воздуха в квартире и прочее. Все лучшие решения, которые мог сделать застройщик на опыте предыдущих очередей.
Из кухни-гостиной открывается прекрасный вид на Храм на крови и реку Исеть. Из спален так же видно сочетание реки и городских построек. В квартире 2 спальни (17 и 16 кв.м.
Просторная двухкомнатная квартира (евротрешка) в ЖК Макаровский. В последней камерной очереди в ЖК Макаровский продается квартира на 9 этаже. В доме всего 59 квартир. Ключи получены от застройщика в декабре 2025г.
Квартира от застройщика, можно делать любой ремонт на ваш вкус. В доме предусмотрены места для размещения наружных блоков кондиционеров, установлен четырехступенчатый фильтр воды, приточная система вентиляции Tion с подогревом и фильтрацией воздуха в квартире и прочее. Все лучшие решения, которые мог сделать застройщик на опыте предыдущих очередей.
Из кухни-гостиной открывается прекрасный вид на Храм на крови и реку Исеть. Из спален так же видно сочетание реки и городских построек. В квартире 2 спальни (17 и 16 кв.м.), 2 санузла, есть возможность сделать большую гардеробную.
На этаже есть локер (колясочная) 8 кв.м., она включена в стоимость квартиры. Вместе с квартирой продается семейный паркинг на 2 машины, площадью 35 кв.м. Стоимость паркинга 10 500 млн.руб.