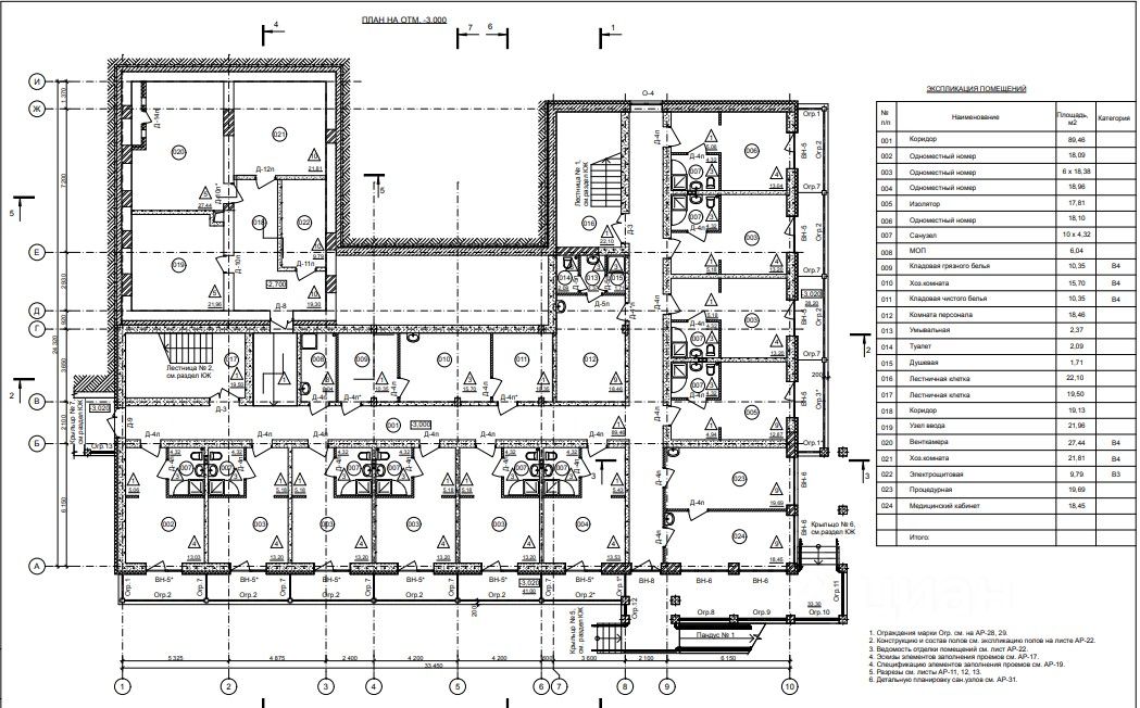
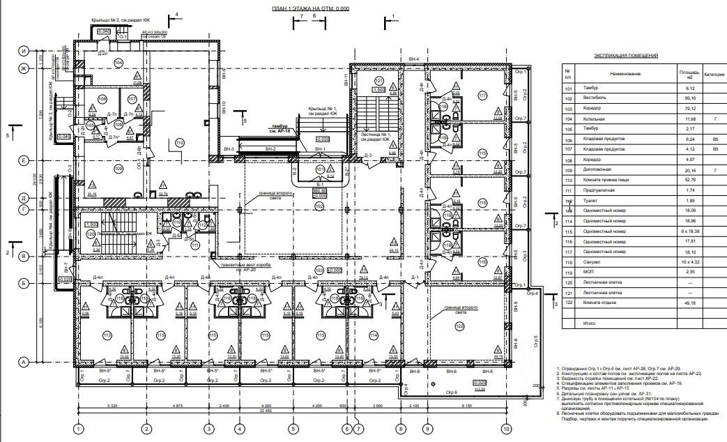
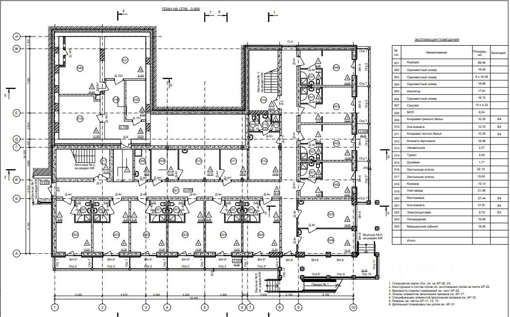
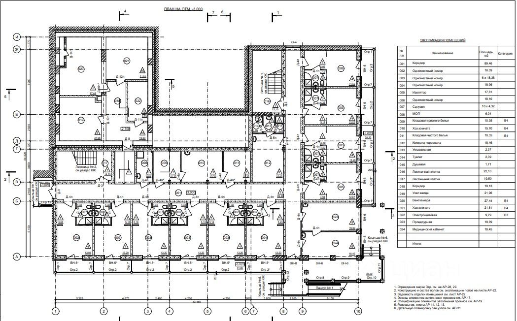
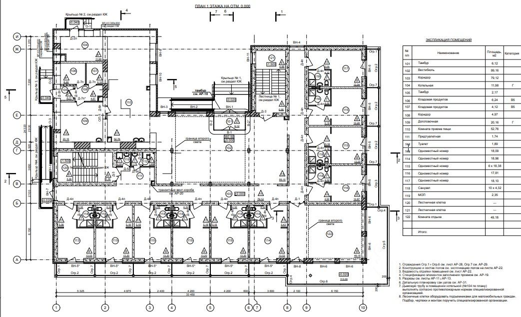
Продам объект незавершенного строительства, состоящий из 2х этажей, общая площадь строения 214,6 м. (фактическая площадь 919,9 м., общая площадь здания 1313,3 м2 ) Объект находится в красивейшем месте нашей области - Нижнесергинском районе. Площадь участка 3096м. Объект находится сразу на въезде в город, рядом с лесным массивом. Недалеко от участка Нижнесергинское водохранилище. Ранее планировалось построить пансионат для малоподвижных граждан. Но, в связи с отсутствием финансирования, пришлось проект заморозить. Участок на возвышенности. Имеется своя скважина и трансформатор максимальная мощность 15КВт. Возможность подключения газа- в 5 метрах от границы участка. Продажу рассмотрим как в качестве донора, так и для дальнейшего строительства(имеется проект и вся необходимая документация).
Продам объект незавершенного строительства, состоящий из 2х этажей, общая площадь строения 214,6 м. (фактическая площадь 919,9 м., общая площадь здания 1313,3 м2 ) Объект находится в красивейшем месте нашей области - Нижнесергинском районе. Площадь участка 3096м. Объект находится сразу на въезде в город, рядом с лесным массивом. Недалеко от участка Нижнесергинское водохранилище. Ранее планировалось построить пансионат для малоподвижных граждан. Но, в связи с отсутствием финансирования, пришлось проект заморозить. Участок на возвышенности. Имеется своя скважина и трансформатор максимальная мощность 15КВт. Возможность подключения газа- в 5 метрах от границы участка. Продажу рассмотрим как в качестве донора, так и для дальнейшего строительства(имеется проект и вся необходимая документация). Рассмотрим все предложения по цене. А также варианты продажи. Один взрослый собственник.