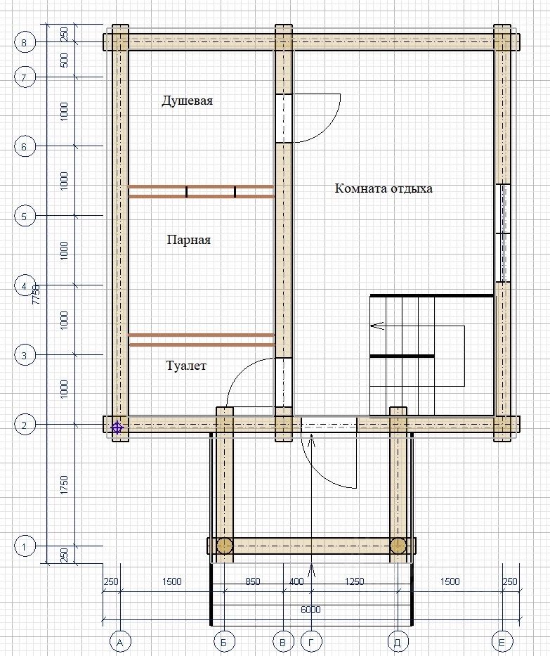
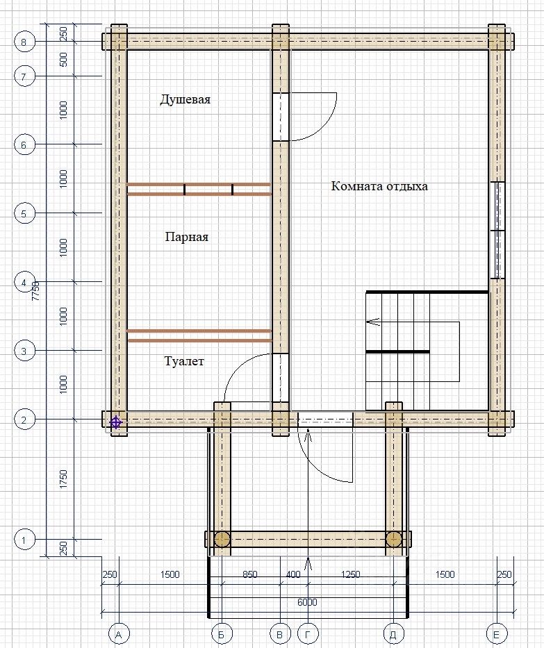
Продается дом-баня в КП Первомайский Парк на участке 7 соток, 30 км от г. Екатеринбурга. На участке имеется хоз.блок, дровник, беседка, детская площадка. Участок оснащен скважиной и септиком, обеспечивающими бесперебойное водоснабжение и канализацию. Поселок газифицирован. Участок огорожен забором, имеются откатные и распашные ворота. Въезд в поселок осуществляется через КПП по пропускам. Рядом магазины магнит и пятерочка, аптека. Недалеко в пос. Октябрьский есть детский сад и школа.