сдам складское помещение, Ангарская, 77б1 200 000 ₽ в месяц
22 июля 2025
Дата публикации объявления
Обн. 15 мая
Дата обновления объявления
19
Количество просмотров (+ просмотры за сегодня)
600 ₽/м² в месяц
Параметры
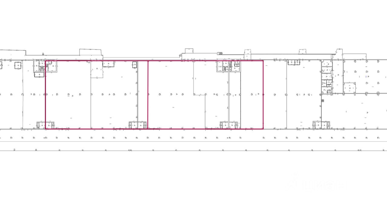
Общая площадь2000 м2
Этаж1
Отдельный входесть
Назначение помещения
склады, хранение товаров
Цена: 1 200 000 рублей, в том числе НДС 22%.
Объект: промышленно-складское помещение, площадь 2 000 м²
Тип сделки: прямая аренда от собственника, заключение долгосрочного договора аренды.
Локация: г. Екатеринбург, ул. Ангарска, 77, литер Б, склад 3
Направление деятельности: помещение подойдет производственным предприятиям (металлообработка, сборка, легкая промышленность и т.д.), логистическим и складским операторам, оптовым компаниям, требующим больших площадей, сервисным центрам и дистрибьюции, а также под складское хранение.
Расположение: Удобная транспортная доступность + собственный ж/д тупик (прямые поставки без перегрузок).
Ключевые преимущества:
— Свoбoднaя плaнирoвка.
Цена: 1 200 000 рублей, в том числе НДС 22%.
Объект: промышленно-складское помещение, площадь 2 000 м²
Тип сделки: прямая аренда от собственника, заключение долгосрочного договора аренды.
Локация: г. Екатеринбург, ул. Ангарска, 77, литер Б, склад 3
Направление деятельности: помещение подойдет производственным предприятиям (металлообработка, сборка, легкая промышленность и т.д.), логистическим и складским операторам, оптовым компаниям, требующим больших площадей, сервисным центрам и дистрибьюции, а также под складское хранение.
Расположение: Удобная транспортная доступность + собственный ж/д тупик (прямые поставки без перегрузок).
— Высокие потолки: 7,5 м. Простор для оборудования, стеллажей и техники.
— Отдельный вход - ворота
— Электричество - 25 кВт.
— Доступ 24/7, круглосуточная охрана, видеонаблюдение на территории.
— Возможность подключения к провайдеру (интернет).
— Отопление - вулкaн c теpмoрегуляторoм.
— Ж/д тупик
— Парковочные места.
— Дополнительные площади - для организации полного цикла деятельности в одном месте, можно арендовать свободные помещения на территории комплекса.
— Арендные каникулы по договоренности.
Высокая транспортная доступность складского комплекса обеспечена возможностью выезда к ключевым транспортным артериям Екатеринбурга и объездным дорогам: ЕКД, Серовский тракт+ собственный ж/д тупик (прямые поставки без перегрузок).
По всем вопросам и для записи на просмотр звоните по будням с 9.00 до 18.00. Будем рады помочь!