сдам торговые площади, Пехотинцев, 2д97 320 ₽ в месяц
9 июля 2025
Дата публикации объявления
Обн. 15 апр
Дата обновления объявления
14
Количество просмотров (+ просмотры за сегодня)
600 ₽/м² в месяц
Параметры
Общая площадь162 м2
Этаж1
Отдельный входесть
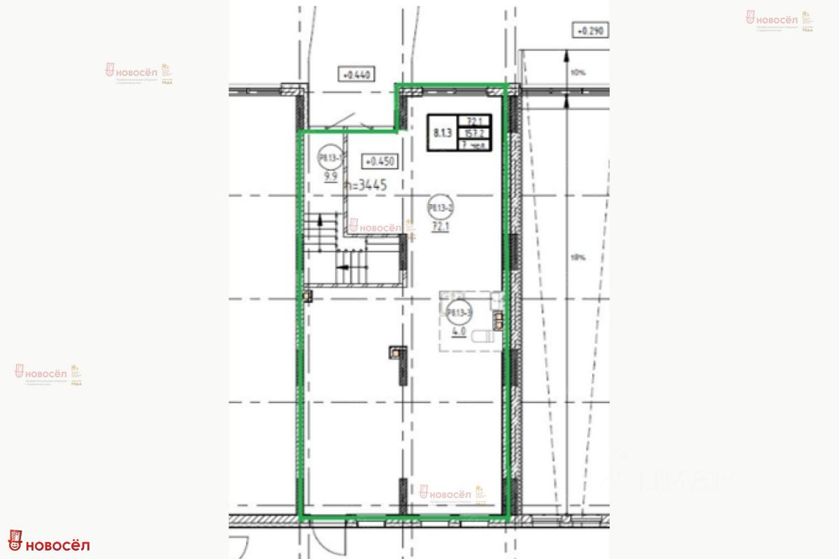
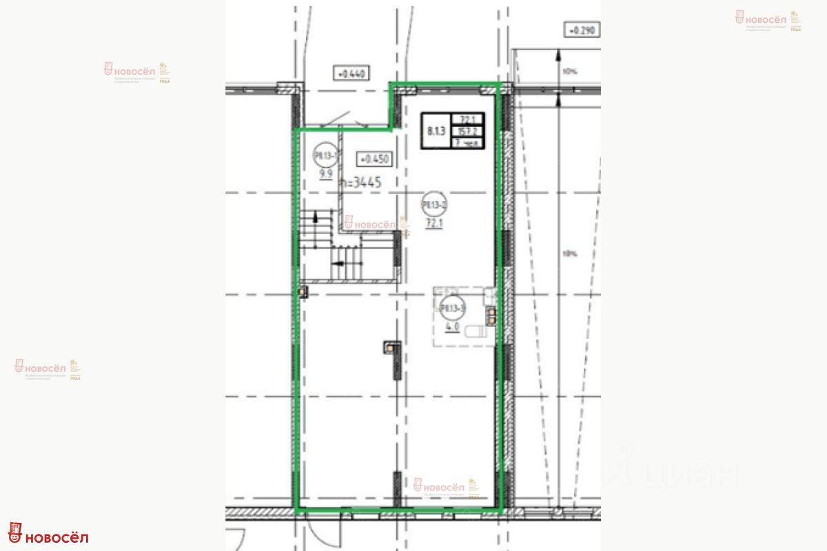
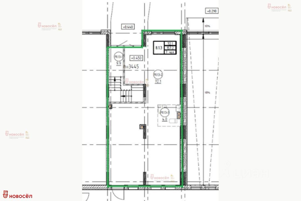
Объект N 187604. Предлагается в долгосрочную аренду эксклюзивное помещение в ЖК ''Депо''.
Помещение свободного назначения находится на -1 и 1 этаже. Это двухуровневое помещение открывает обширный полет фантазии, для реализации вашего бизнеса.
На 1 этаже отдельный вход в помещение, расположенное на первом этаже и спуск на -1 этаж. Общая площадь помещения -162,2 кв.м, из них 71,2 кв.м площадь -1 этажа, и 91 кв.м площадь 1 этажа. Высота потолков- 3,7 м.
На 1 этаже входная группа с остеклением в пол, выходит на улицу Пехотинцев, два окна выходят во двор жилого комплекса. Отдельная входная группа с выходом на тротуар и прогулочную зону создает отличны пешеходный трафик, а строящийся напротив квартал только усилит посещаемость и узнаваемость вашего бизнеса.
Объект N 187604. Предлагается в долгосрочную аренду эксклюзивное помещение в ЖК ''Депо''.
Помещение свободного назначения находится на -1 и 1 этаже. Это двухуровневое помещение открывает обширный полет фантазии, для реализации вашего бизнеса.
На 1 этаже отдельный вход в помещение, расположенное на первом этаже и спуск на -1 этаж. Общая площадь помещения -162,2 кв.м, из них 71,2 кв.м площадь -1 этажа, и 91 кв.м площадь 1 этажа. Высота потолков- 3,7 м.
На 1 этаже входная группа с остеклением в пол, выходит на улицу Пехотинцев, два окна выходят во двор жилого комплекса. Отдельная входная группа с выходом на тротуар и прогулочную зону создает отличны пешеходный трафик, а строящийся напротив квартал только усилит посещаемость и узнаваемость вашего бизнеса.
Звоните и приходите на просмотр этого эксклюзивного помещения.