Если цена в объявлении изменится, мы сразу сообщим вам об этом на электронную почту.
Нажимая «Подписаться», вы соглашаетесь с правилами.
продам дом, Аист кв-л, 4114 850 000 ₽
6 июня 2025
Дата публикации объявления
Обн. 22 мая
Дата обновления объявления
14
Количество просмотров (+ просмотры за сегодня)
121 126 ₽/м²
Чистая продажа
Термин "Чистая продажа" означает, что в квартире никто не прописан или
есть куда выписаться и вывезти вещи. Это лучший вариант для покупателя.
Вероятность срыва сделки минимальна.
Этажей1
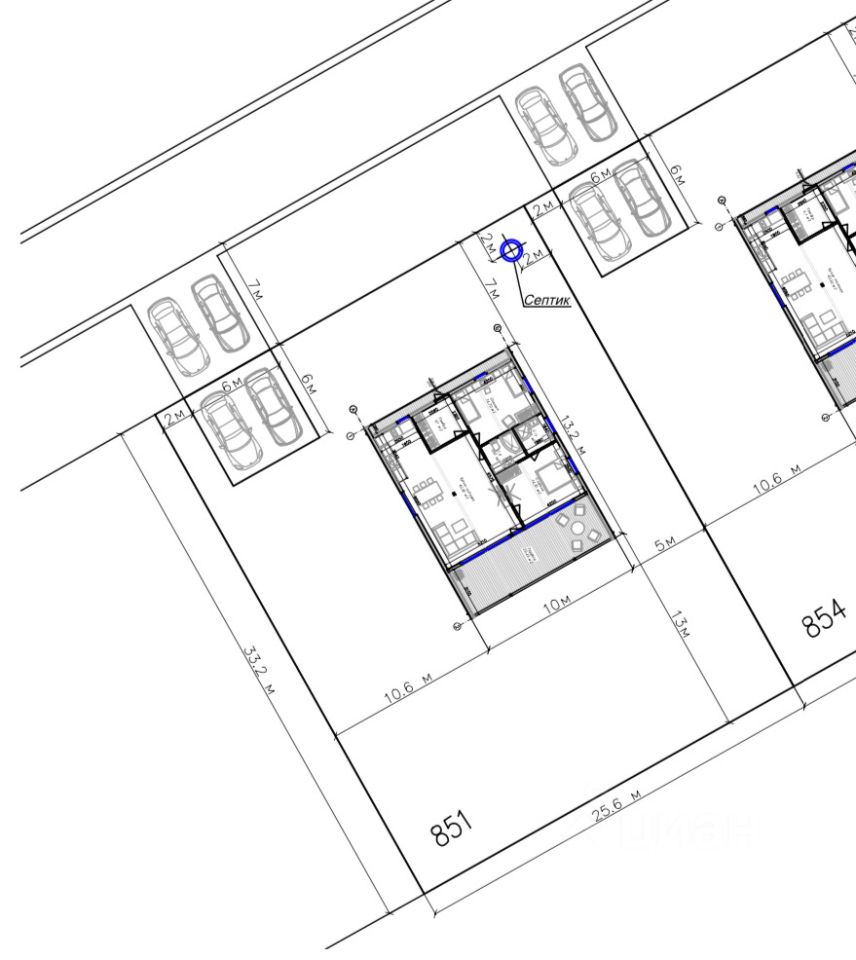
Площадь участка8,5 соток
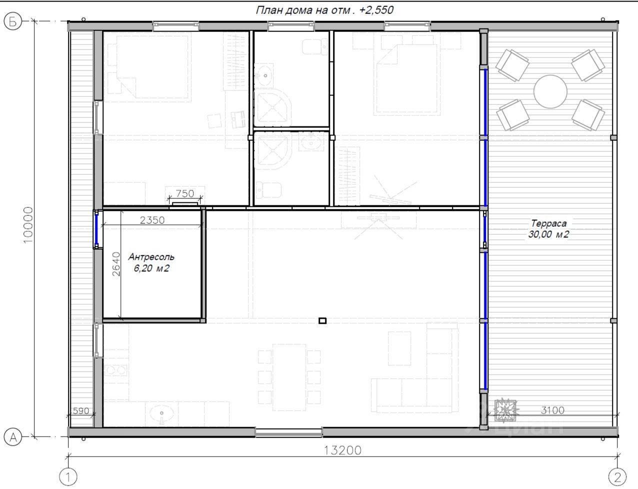
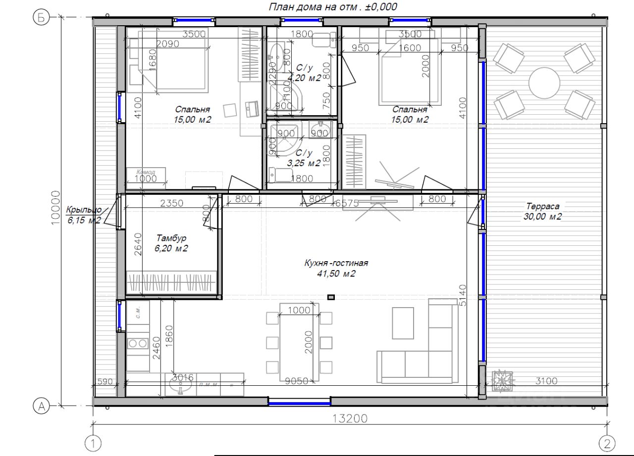
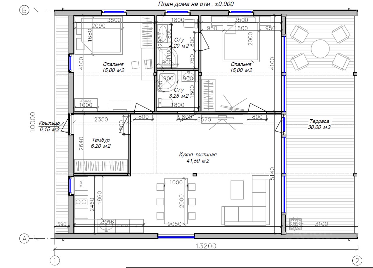
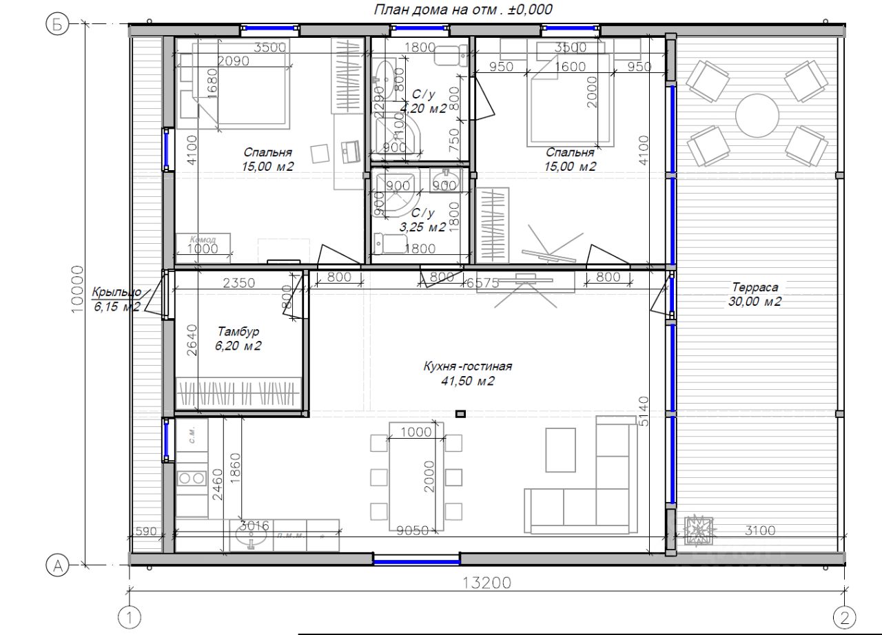
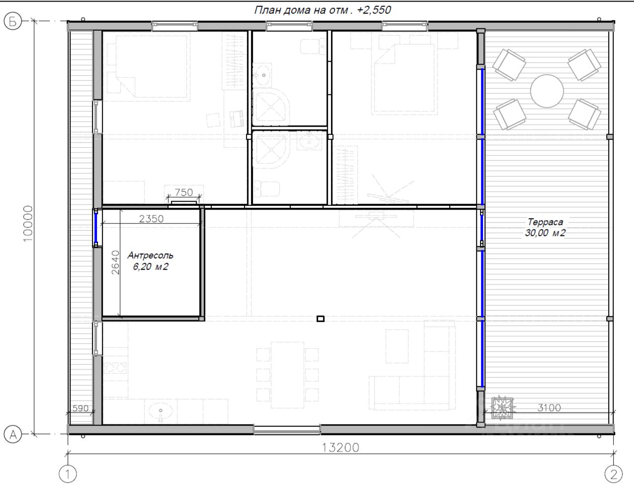
Общая площадь122,6 м2
ЭлектричествоЕсть
Газоснабжениецентральное
Продается дом в элитном поселке Заповедника АИСТ - это обособленная территория, состоящая из пяти поселков повышенного комфорта. Поселки имеют отдельный охраняемый въезд, улучшенное видеонаблюдение и забор по всему периметру, что полностью ограничивает доступ на территорию посторонних лиц.Для жителей Аиста предусмотрены следующие преимущества:- Возможность пользоваться всей инфраструктурой Заповедника.- Широкие асфальтированные дороги (6 метров).- Безопасная детская площадка.- Свой выход в лес.- Светодиодное освещение. Участок 8,5 соток.Каркасный дом 122,6 кв.м. в стиле БарнХаус.Отделка помещений под ключ.Большая гостиная-кухня 42 кв.м.
Продается дом в элитном поселке Заповедника АИСТ - это обособленная территория, состоящая из пяти поселков повышенного комфорта. Поселки имеют отдельный охраняемый въезд, улучшенное видеонаблюдение и забор по всему периметру, что полностью ограничивает доступ на территорию посторонних лиц.Для жителей Аиста предусмотрены следующие преимущества:- Возможность пользоваться всей инфраструктурой Заповедника.- Широкие асфальтированные дороги (6 метров).- Безопасная детская площадка.- Свой выход в лес.- Светодиодное освещение. Участок 8,5 соток.Каркасный дом 122,6 кв.м. в стиле БарнХаус.Отделка помещений под ключ.Большая гостиная-кухня 42 кв.м. Установлен кухонный гарнитур со всей встроенной техникой: посудомоечная машина, духовой шкаф, стиральная машина, микроволновая печь, варочная панель, чайник и вся посуда. Две спальные комнаты по 15 кв.м. В одной из спален (над тамбуром) сделана антресоль 6 кв.м., можно использовать как игровую для ребенка или чердак. Два укомплектованных санузла сантехникой AM.PM. Терраса 30 кв.м.Современный дизайн, натуральные материалы, простота и функциональность.Отделка интерьера березовыми шпонированными панелями, покрытыми маслом OSMO. В доме предусмотрено электрическое конвекторное отопление с системой умный дом. В каждой комнате предусмотрено приточно-вытяжная установка с рекуперацией тепла. В кухне-гостиной и мастер-спальне установлены кондиционеры.Электрическая сеть проложена подземным способом, увеличенная мощность 25 кВт. Водопроводная сеть проложена подземным способом. Септик. Установлен водонагреватель на 100 литров. Дом строил для себя, под контролем стройнадзора, сделано много улучшений от типового проекта. По периметру дома выложены щебнем дорожки, предусмотрен заезд для 2х автомобилей и площадка для отдыха на заднем дворе. Под землей проложены сети (электричество и ХВС) для бани. Дом полностью меблирован и оснащен всеми необходимыми предметами быта. Установлен современный телевизор с диагональю 65 дюймов. Дом имеет высокий потенциал как арендный бизнес с окупаемостью менее 10 лет. Стоимость соседнего участка 8,5 соток - 6 300 000 руб.Дом у застройщика с отделкой на данный момент - 12 800 000 руб. + расходы на септик/ подключение электричества и водоснабжения, благоустройство территории, кухня и другие улучшения это еще порядка 2 200 000 руб. Могу предоставить все расчеты и квитанции.Итого себестоимость составляет: 21 300 000 руб.Ваша экономия составит: 6 450 000 руб.