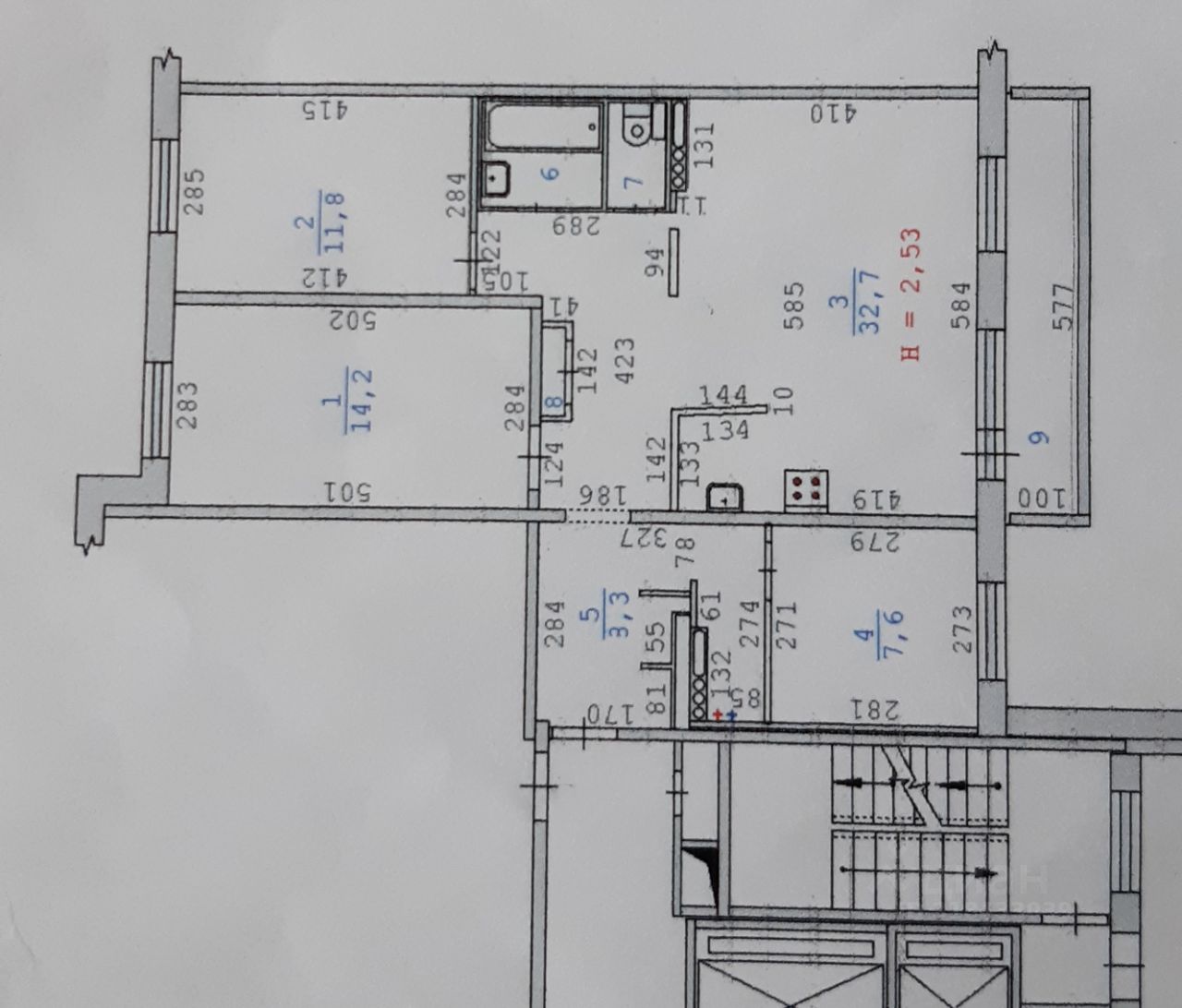
Продам 3 комн. квартиру. - Большая гостиная-кухня (около 33 кв.м). в ней два окна и выход на лоджию. Просторная зона отдыха. В зоне кухни есть место для большого стола. - Три отдельных жилых комнаты 14, 12 и 7, 5 кв.м. Маленькая комната может использоваться как кабинет, гостевая спальня, гардеробная и др. - Фактически 4х-комн. получается. Была сделана перепланировка, узаконена, все документы в полном порядке. - Прихожая достаточно просторная, есть место и для верхней одежды, и для обуви. Находится не на проходе, грязь уличная от обуви не будет разноситься по комнатам. - На кухне кухонный гарнитур со встроенной техникой. - Встроенные места для хранения в прихожей, спальне, гостиной. - Также есть небольшое помещение для кладовки.
Продам 3 комн. квартиру. - Большая гостиная-кухня (около 33 кв.м). в ней два окна и выход на лоджию. Просторная зона отдыха. В зоне кухни есть место для большого стола. - Три отдельных жилых комнаты 14, 12 и 7, 5 кв.м. Маленькая комната может использоваться как кабинет, гостевая спальня, гардеробная и др. - Фактически 4х-комн. получается. Была сделана перепланировка, узаконена, все документы в полном порядке. - Прихожая достаточно просторная, есть место и для верхней одежды, и для обуви. Находится не на проходе, грязь уличная от обуви не будет разноситься по комнатам. - На кухне кухонный гарнитур со встроенной техникой. - Встроенные места для хранения в прихожей, спальне, гостиной. - Также есть небольшое помещение для кладовки. Или можно там сделать постирочную, все коммуникации для этого имеются. - Окна в спальнях на юго-восток во двор, в кухне-гостиной на северо-запад на улицу. - Осенью 2023 г. заменили во всем доме трубы водоснабжения и канализации. - Чистый подъезд. Хорошие адекватные соседи. - Рядом есть новый детский сад и новая школа, ТРЦ Радуга парк, продуктовые магазины, аптеки и др., недалеко ТРЦ Мега, выезд из города. До центра города 10-15 мин на машине. Один взрослый собственник. Без обременений. Звоните, пишите отвечу на все вопросы.