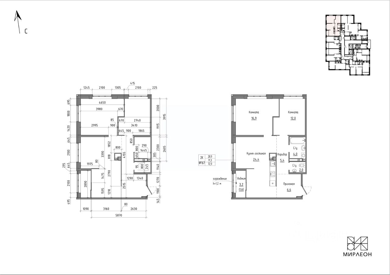
В этой квартире действительно можно двигаться по кругу планировка это позволяет.
Между кухней, гостиной и коридором формируется удобный замкнутый маршрут, благодаря которому можно свободно перемещаться между зонами. Кухня-гостиная становится узлом движения. Пространство не дробится коридорами и не обрывается тупиками комнаты связаны напрямую. За счет этого квартира ощущается динамичной и живой.
Две изолированные спальни позволяют гибко использовать квартиру: для семьи с ребенком или работы из дома. Раздельные санузлы упрощают повседневные сценарии, теплая лоджия добавляет еще одну зону, которой можно пользоваться круглый год.
Если вы ищете функциональную квартиру с нестандартной логикой пространства, свяжитесь с нами, чтобы записаться на просмотр.












