Если цена в объявлении изменится, мы сразу сообщим вам об этом на электронную почту.
Нажимая «Подписаться», вы соглашаетесь с правилами.
продам 1-к, Анатолия Мехренцева, 37 000 000 ₽
8 мая 2025
Дата публикации объявления
Обн. 3 апр
Дата обновления объявления
101
Количество просмотров (+ просмотры за сегодня)
177 215 ₽/м²
Чистая продажа
Термин "Чистая продажа" означает, что в квартире никто не прописан или
есть куда выписаться и вывезти вещи. Это лучший вариант для покупателя.
Вероятность срыва сделки минимальна.
Застройщик - Корпорация Атомстройкомплекс, АО. Проектная декларация опубликована на сайте застройщика
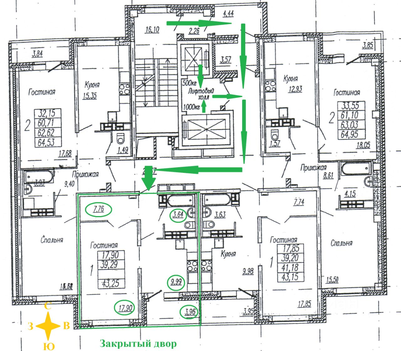
Продаётся уютная однокомнатная квартира площадью 39.5 квадратных метров на третьем этаже монолитного дома. Дом расположен в живописном районе Екатеринбурга. Это идеальное место для тех, кто ценит комфорт и безопасность.
Квартира имеет продуманную планировку: жилая площадь составляет 17.9 квадратных метров, а кухня 10 квадратных метров, что позволяет удобно разместить кухонный гарнитур и столовую зону. Наличие лоджии в дополнительные 4м2 добавляет пространство для отдыха и возможность наслаждаться видами на двор и лес.
Совмещённый санузел оборудован всем необходимым для комфортной жизни. Благодаря расположению окон, в квартире всегда много света и свежего воздуха.
Продаётся уютная однокомнатная квартира площадью 39.5 квадратных метров на третьем этаже монолитного дома. Дом расположен в живописном районе Екатеринбурга. Это идеальное место для тех, кто ценит комфорт и безопасность.
Квартира имеет продуманную планировку: жилая площадь составляет 17.9 квадратных метров, а кухня 10 квадратных метров, что позволяет удобно разместить кухонный гарнитур и столовую зону. Наличие лоджии в дополнительные 4м2 добавляет пространство для отдыха и возможность наслаждаться видами на двор и лес.
Совмещённый санузел оборудован всем необходимым для комфортной жизни. Благодаря расположению окон, в квартире всегда много света и свежего воздуха.
По общему мнению это лучший жилой комплекс в районе по сумме всех преимуществ, окружен парковой зоной с живительным лесным воздухом, красивый внешний вид, качественные строительные материалы, надежная конструкция монолит в кирпиче с энергоэффективным утеплением базальтом, отличная инженерия с горизонтальной разводкой труб отопления в полах и индивидуальными счетчиками тепла на каждую квартиру, бесшумные корейские лифты Kone, грузовой и обычный, индивидуальная крышная газовая котельная, обще домовая очистка питьевой воды.
Закрытый двор на 4 дома (квартал) под видео охраной, охрана на въезде шлагбаума, двор всегда свободен безопасен для детей.
Комплекс с трех сторон окружен сосновым и березовым лесом, который всегда будет рядом. Березовая роща на которую выходят окна квартиры признана особо охраняемой природной территорией с краснокнижными растениями, присвоен статус парка. Юго-западный лесопарк с проложенной 3х километровой тропой здоровья для пеших, вело или лыжных прогулок, по реликтовому лесу, озеро Чемоданчик с организованными зонами отдыха, и все это на расстоянии вытянутой руки. Остановка общественного транспорта Двинская. Наличие большого количества платных и бесплатных машина мест с трех сторон комплекса. Три детских сада в пределах 200 метров, школа 500 метров, продуктовая сеть 5ка у дома. ЖК находится в управлении УК Территория, минимальные коммунальные платежи с учетом ресурсов летом около 2500, зимой с учетом отопления 3500 рублей, реальные квитанции за длительный период эксплуатации. Отличная транспортная доступность в любой район города и крупнейшие торговые центры МЕГА, Радуга парк, Лемана Про в доступе 7-10 минут на авто. Дружные и адекватные соседи, средний класс, праздники двора, новогодняя елка и горка. Если все сложить в месте, то получится идеальное место для проживания! Остaeтся и входит в стоимость: вся мебель и техника. Идеально под сдачу в аренду!
Чистая продажа. Я единственный взрослый собственник, без обременений, мат. капитала, в собственности более 7 лет. Проживаю в другом регионе.
Это отличный вариант как для молодых семей, так и для тех, кто предпочитает спокойствие и уединение после насыщенного дня. Здесь вы найдёте всё необходимое для комфортной городской жизни. Приглашаю вас ознакомиться с этой прекрасной квартирой лично!