Если цена в объявлении изменится, мы сразу сообщим вам об этом на электронную почту.
Нажимая «Подписаться», вы соглашаетесь с правилами.
продам коттедж, Врубеля, 287 590 000 ₽
5 мая 2025
Дата публикации объявления
Обн. 30 окт
Дата обновления объявления
19
Количество просмотров (+ просмотры за сегодня)
70 935 ₽/м²
Чистая продажа
Термин "Чистая продажа" означает, что в квартире никто не прописан или
есть куда выписаться и вывезти вещи. Это лучший вариант для покупателя.
Вероятность срыва сделки минимальна.
Этажей1
Площадь участка7 соток
Общая площадь107 м2
Материал домадерево
ЭлектричествоЕсть
Газоснабжениенет
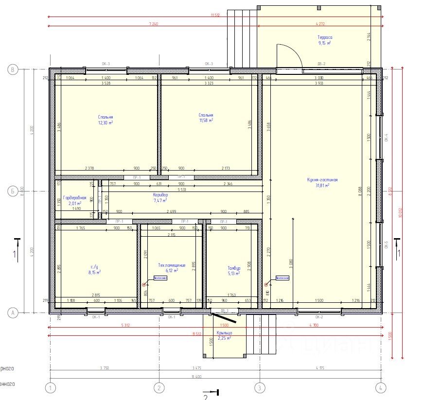
Продается просторный дом площадью 107 м. кв. с выходом на большую террасу 9 м. кв. в Свердловской области, КП Кадниково по адресу ул. Врубеля 26. Участок 7 соток входит в стоимость.
Дом от надежного застройщика с опытом в строительстве более 8 лет, работаем официально и прозрачно. Гарантия по договору 5 лет. Продаем напрямую без посредников, НЕ РИЭЛТОРЫ.
Для комфортного проживания в доме предусмотрены: просторная кухня-гостиная, 3 спальни, большой сан. узел, вместительная гардеробная,
Размеры дома: габариты дома 8,4х11,4 м, терраса 4,3х2,1 м, крыльцо 1,5х1,5 м,
Участок подключен к электричеству, организована въездная группа, скважина, септик.
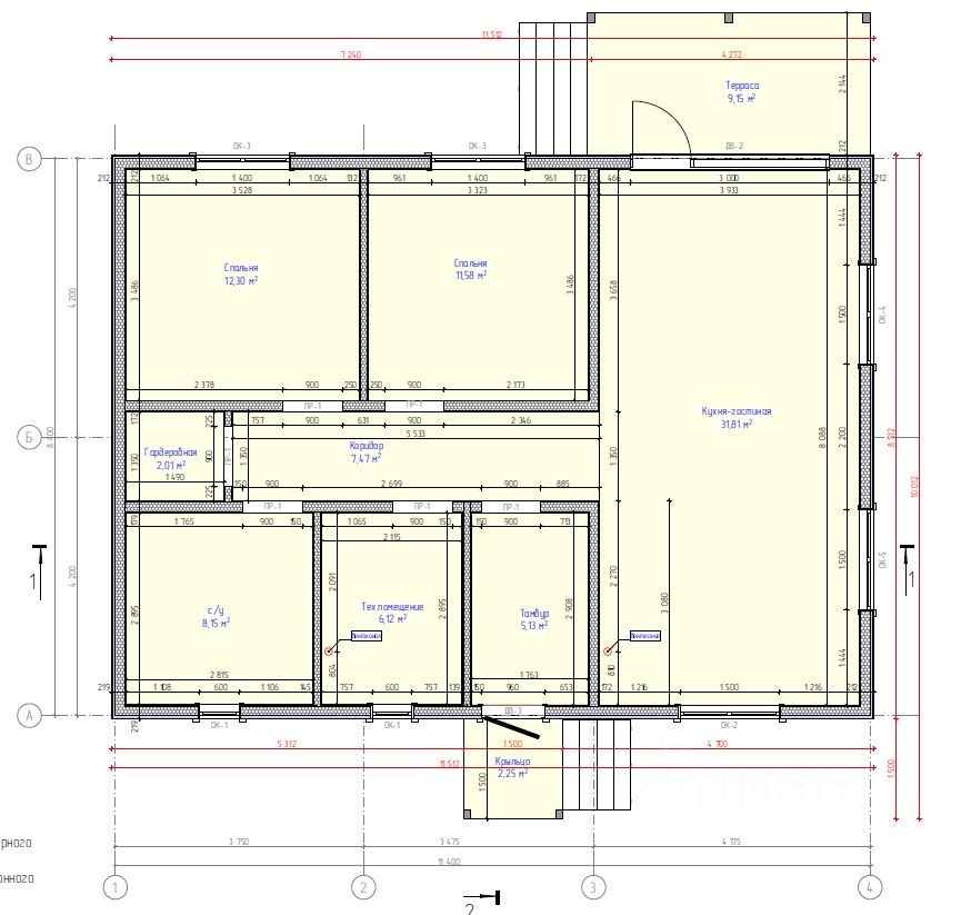
Продается просторный дом площадью 107 м. кв. с выходом на большую террасу 9 м. кв. в Свердловской области, КП Кадниково по адресу ул. Врубеля 26. Участок 7 соток входит в стоимость.
Дом от надежного застройщика с опытом в строительстве более 8 лет, работаем официально и прозрачно. Гарантия по договору 5 лет. Продаем напрямую без посредников, НЕ РИЭЛТОРЫ.
Для комфортного проживания в доме предусмотрены: просторная кухня-гостиная, 3 спальни, большой сан. узел, вместительная гардеробная,
Размеры дома: габариты дома 8,4х11,4 м, терраса 4,3х2,1 м, крыльцо 1,5х1,5 м,
Участок подключен к электричеству, организована въездная группа, скважина, септик.
В современном КП Кадниково есть развитая инфраструктура: остановки общественного транспорта, магазины, аптеки, детский сад, школа, поликлиники, многочисленные спортивные зоны, кофейни и пекарни, прогулочные зоны, оборудованные лужайки и площадки для игр и многое другое. Получасовая доступность природных парков, загородных клубов и баз отдыха. Расстояние до Екатеринбурга 43 км по трассе.
Застройщик аккредитован в крупнейших банках (Сбер, ВТБ, Дом.рф, Альфа-банк, Россельхозбанк), поможем оформить льготную (сельская, семейная) и иную ипотеку.
Дополнительно по желанию рассчитаем и включим в ипотеку мебелировку и бытовую технику.
Напишите или позвоните нам, ответим на все интересующие вопросы, организуем просмотр дома на месте.