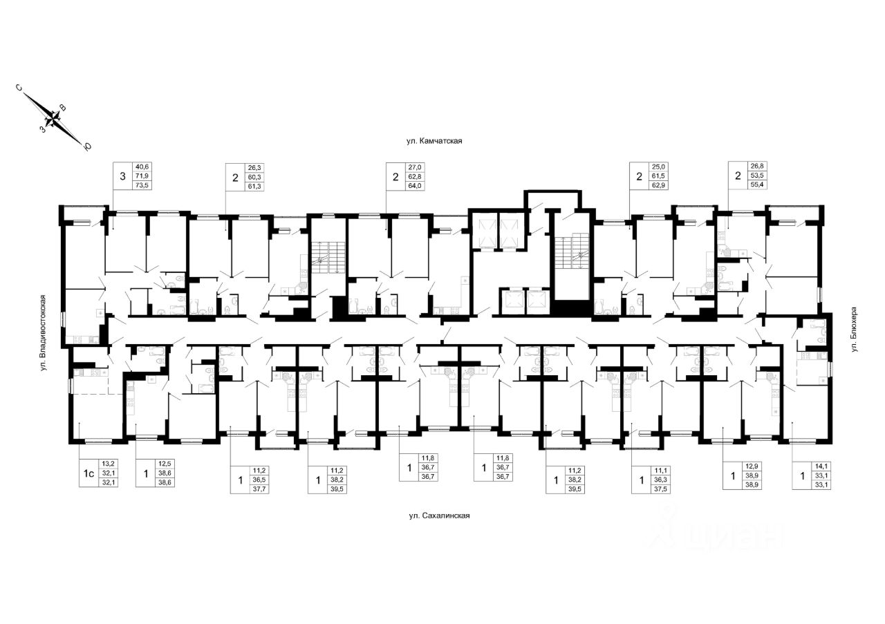
Жилой квартал ''Уральский'' находится в Пионерском микрорайоне. Многосекционные дома проекта расположились в пределах улиц Блюхера, Камчатской, Владивостокской и Сахалинской, вблизи от Шарташского лесопарка.
Мастер план проекта предполагает возведение девяти домов различной этажности, пять из которых уже готовы и заселены.
На территории нового квартала запроектированы учебные заведения: школа и детский сад. Вдоль домов будет протянут пешеходный бульвар с зонами для отдыха. В ближайших планах на придомовой территории оформить лаунж-зону с большой песочницей для малышей.






