Продается отличный дом в с. Курганово, мкр Морозовские дачи.
Подходит под все льготные программы, ставка по ипотеке 6%.
В продаже 2 дома: один на участке 10 соток, второй на участке 7,38 соток.
Бесплатная помощь в одобрении ипотеки для своих покупателей. Сопровождение сделки ведем мы!
Земля ИЖС, газ по границе участка!
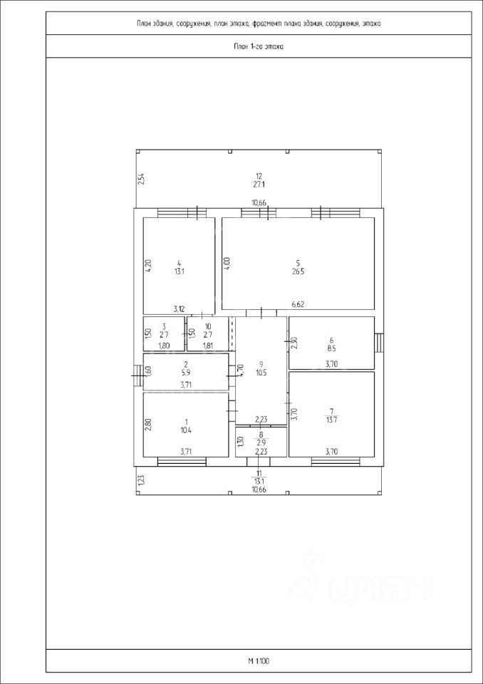
Дом в предчистовой отделке.
Можно дополнительно заказать отделку ?.
Стоимость указана за дом с предчистовой отделкой с участком за наличный расчет
ID объекта в нашей базе: 171



