Если цена в объявлении изменится, мы сразу сообщим вам об этом на электронную почту.
Нажимая «Подписаться», вы соглашаетесь с правилами.
продам 3-к, Бетонщиков, 5/6 стр.11 424 766 ₽
30 янв 2025
Дата публикации объявления
Обн. сегодня
Дата обновления объявления
16
Количество просмотров (+ просмотры за сегодня)
Спецпредложение
Турбо x8
161 595 ₽/м²
Чистая продажа
Термин "Чистая продажа" означает, что в квартире никто не прописан или
есть куда выписаться и вывезти вещи. Это лучший вариант для покупателя.
Вероятность срыва сделки минимальна.
Застройщик - Специализированный застройщик «ЛСР. Недвижимость-Урал», АО. Проектная декларация опубликована на сайте наш.дом.рф
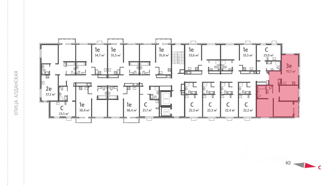
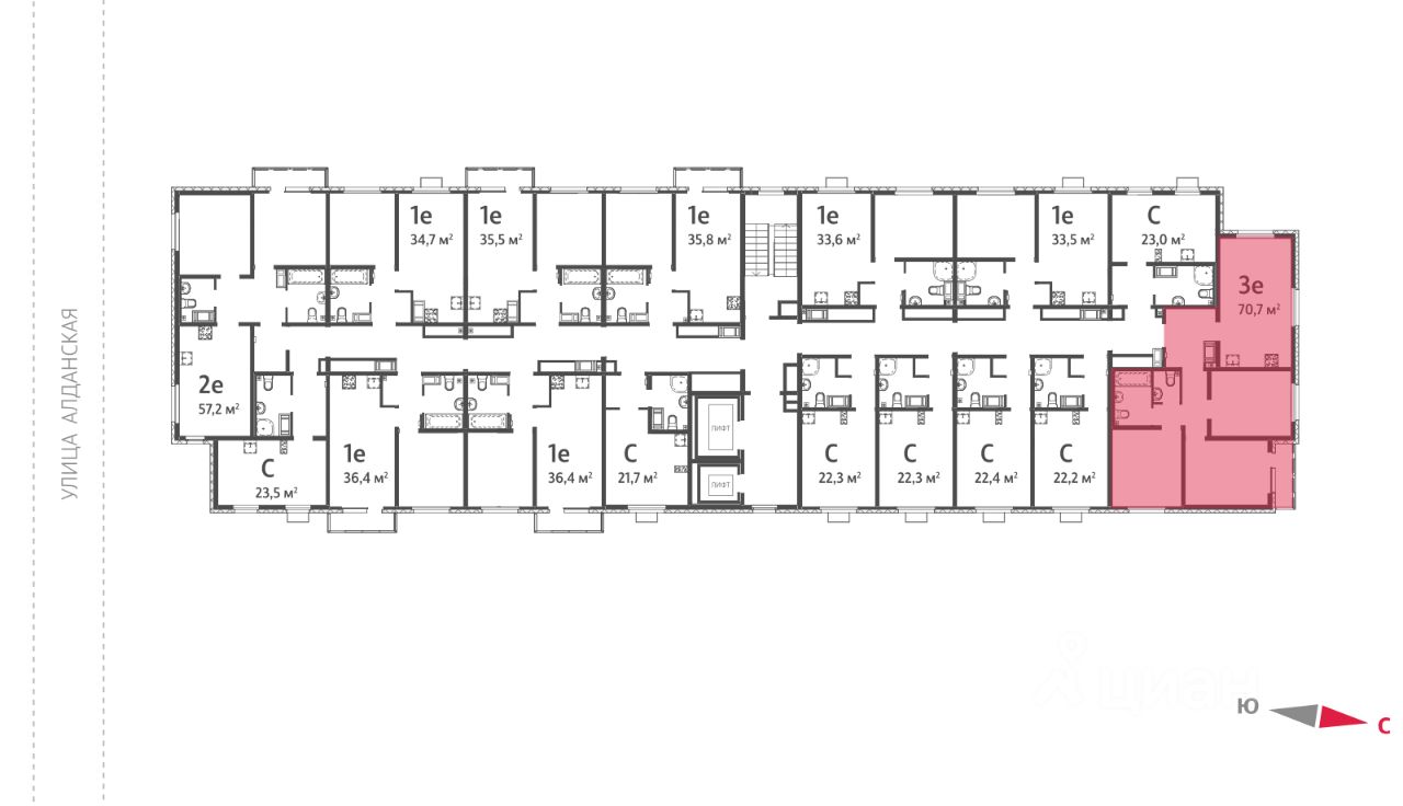
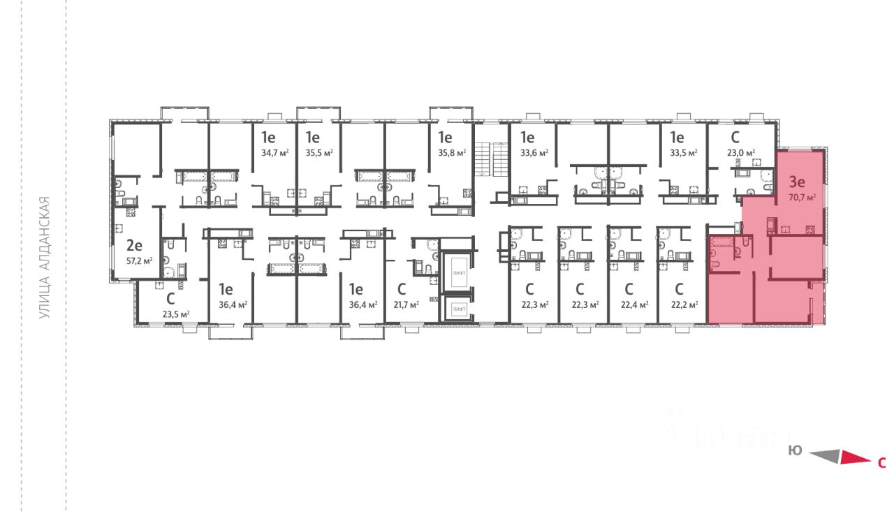
Продается 3-комн. квартира с европланировкой, площадью 70.7 м2 в монолитно-кирпичной новостройке. Возможен вариант покупки с использованием ипотечных средств, есть рассрочка. Жилая площадь 33.4 м2, кухня 19.2 м2, отделка под ключ. Раздельных санузлов - нет, балконов - нет, лоджий - 1.
Квартира располагается на 14 этаже 15-этажного дома в ЖК Малахит. Застройщик - ЛСР, сдача дома - III квартал 2026 года, высота потолков 2.5 м. Парковка автомобилей - наземная. Инфраструктура: школа, детский сад, детские площадки, спортивные площадки, места для отдыха, супермаркет, коммерческие объекты.
Жилой комплекс ''Малахит'' - новый квартал площадью 25 га в микрорайоне ЖБИ Кировского района Екатеринбурга высотностью 10-26 этажей.
Продается 3-комн. квартира с европланировкой, площадью 70.7 м2 в монолитно-кирпичной новостройке. Возможен вариант покупки с использованием ипотечных средств, есть рассрочка. Жилая площадь 33.4 м2, кухня 19.2 м2, отделка под ключ. Раздельных санузлов - нет, балконов - нет, лоджий - 1.
Квартира располагается на 14 этаже 15-этажного дома в ЖК Малахит. Застройщик - ЛСР, сдача дома - III квартал 2026 года, высота потолков 2.5 м. Парковка автомобилей - наземная. Инфраструктура: школа, детский сад, детские площадки, спортивные площадки, места для отдыха, супермаркет, коммерческие объекты.
Жилой комплекс ''Малахит'' - новый квартал площадью 25 га в микрорайоне ЖБИ Кировского района Екатеринбурга высотностью 10-26 этажей.
Высотность 10-26 этажей
Жилой комплекс ''Малахит'' - находится в микрорайоне ЖБИ Кировского района Екатеринбурга