Если цена в объявлении изменится, мы сразу сообщим вам об этом на электронную почту.
Нажимая «Подписаться», вы соглашаетесь с правилами.
продам 2-к, Цвиллинга, гп 1115 806 000 ₽
18 июля 2024
Дата публикации объявления
Обн. 30 апр
Дата обновления объявления
12
Количество просмотров (+ просмотры за сегодня)
Спецпредложение
Турбо x8
179 614 ₽/м²
Чистая продажа
Термин "Чистая продажа" означает, что в квартире никто не прописан или
есть куда выписаться и вывезти вещи. Это лучший вариант для покупателя.
Вероятность срыва сделки минимальна.
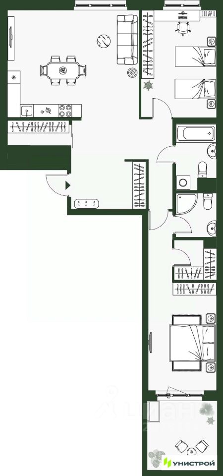
Квартира
Общая площадь88 м2
Жилая площадь30,8 м2
Кухня25,3 м2
Тип собственностисвидетельство о праве собственности