1-к, Суходольская, 47 Показать на карте
Академический, Широкая речка
Екатеринбург, Жилой комплекс «Смородина»
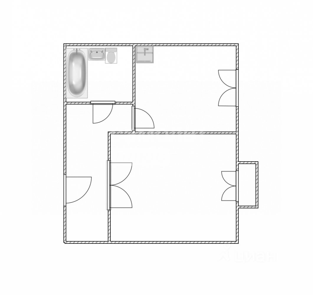
Продается квартира с красивым видом. По отличной цене.Полноценная однушка 37 м, ждет своего нового хозяина, который вдохнет в нее вторую жизнь:) илая площадь составляет 15.4 квадратных метров, кухня 10.4 квадратных метров. Квартира расположена на шестом этаже двадцатитележного монолитного дома, построенного в 2016 году. Из окон открывается приятный вид на улицу. В квартире выполнен косметический ремонт, что позволит вам сразу же заехать и жить без дополнительных вложений. Санузел совмещённый, что является удобным решением для малогабаритной квартиры.Особенностью данного жилья является закрытая и безопасная территория двора, где расположены детская и спортивная площадки, что особенно актуально для семей с детьми. Для вашего комфорта рядом находятся школа, детский сад, торговый центр, парк и фитнес-клуб, обеспечивая все необходимое для комфортной жизни в шаговой доступности.Приобретая эту квартиру, вы получаете современное жильё в спокойном районе с развитой инфраструктурой и удобствами для активного отдыха прямо во дворе дома.
До центра ~ 45 мин
Приблизительное время на общественном транспорте до площадь 1905 года (Центр) – 45 мин
37 м2
6 / 20 этаж
Монолит
- Показать контакты
- Добавить в избранное
37 м2
6 / 20 этаж
Монолит
4 350 000
117 568 /м2
