Мы объединились! Теперь объявления сразу на двух сайтах. Ищите там, где удобно
Приложение Циан
Личный кабинет
Сообщения
Избранное
  • Добавить объявление
  • Ипотека
  • Подбор риелтора
  • Журнал
  • Шаблоны документов
  • Продажа
  • Аренда
  • Новостройки
  • Коммерческая
  • Бизнес-центры
  • Дачи, участки
  • Земля
  • Гаражи

Продажа недвижимости

35 867 объяв.
1/23
11 900 000 ₽
1-к, Шаумяна, 16
Чкаловская14 мин
56 м² · Этаж 7 из 16
Новостройка, 4 кв. 2026
Успейте забронировать по этой цене! Предложение ограничено! Стоимость квартиры указана со скидкой, ваша экономия составит 640,000 RUB. По всем вопросам звоните в офис продаж, наши менеджеры вам все расскажут! Квартира с кухней-гостиной и одной спальней в Южных кварталах. Особенности планировки: гардеробная, лоджия, предчистовая отделка. квартиры в нашей базе: ЮКВ11-Ж1.7.5. Жилой район ''Южные кварталы'' расположен в границах улиц Московская, Шаумяна и Фурманова, недалеко от автовокзала. До центра города — 10 минут на автомобиле. До станции метро ''Чкаловская'' — 15 минут пешком. Рядом находится парк, школа олимпийского резерва, несколько гимназий, лицей, детские сады и городская больница. ''Южные кварталы'' — проект комплексного редевелопмента территории, разработанный архитекторами Брусники совместно с голландскими бюро. Он разделен на несколько частей, каждая из которых имеет свой характер. Вдоль оживленной Московской появятся более высокие и крупные дома. Профиль спокойной и очень зелёной Шаумяна сформируют кварталы среднеи этажности. В глубине района мы расположим урбан-виллы, чуть дальше — башни-доминанты. Последние будут играть роль визуальных акцентов и впоследствии станут символами этого места. Ближе к Фурманова мы организуем образовательный кластер. Его составят два детских сада на 300 и 325 мест и школа, рассчитанная на 1500 учеников. Школа будет иметь спортивную зону, которая станет доступна и жителям района. Свяжет территорию сеть общественных пространств. Её центральным звеном станет зелёный променад, проходящий сквозь весь район и соединяющий его с парком 50-летия ВЛКСМ. #Zsggvg
1/26
8 070 000 ₽
1-к, Стачек, 64 стр.
Проспект Космонавтов7 мин
41 м² · Этаж 2 из 8
Новостройка, 3 кв. 2027
Квартира с кухней-гостиной и одной спальней в Северном квартале. Особенности планировки: предчистовая отделка. квартиры в нашей базе: СКВ04.2-Ж1.2.2. ''Северный квартал'' расположен в квадрате улиц Стачек, Войкова, Каширской и переулка Ритслянда. Проект находится на тихой территории между крупными городскими магистралями: проспектом Космонавтов и улицей Старых Большевиков, в 5 минутах пешком от метро ''Проспект Космонавтов''. Помимо транспортной доступности район имеет развитую инфраструктуру: торговые центры, продуктовые магазины, аптеки, кафе, поликлиники, детские центры и другие повседневные сервисы рядом. Оживлённое уличное движение останется за пределами квартала, а внутри создается собственная природная среда с зонами для вечерних прогулок, расслабленного отдыха, спорта и игр. Между домов проходит широкий пешеходный бульвар с разнообразным ландшафтом. Он объединяет общественные пространства между кварталами и переходит в площадь-сквер с фонтаном. Проект благоустройства связывает приватные дворы кварталов, парковое пространство вокруг урбан-вилл, игровые комплексы для детей разных возрастов и спортивные площадки в единый ландшафт. Внутриквартальный двор тихий и спокойный. За счёт разной этажности и арок во дворе — много света. Здесь будет высажено до 40 видов растений — деревья, кустарники, цветы, злаковые травы и газон. Деревья привезут уже взрослыми со сформированной кроной. Растения цветут в разное время года, имеют разную плотность и высоту. Всё это сделано для того, чтобы двор был разнообразным и в каждое время года имел свой цвет. #zMzTF3
1/23
8 490 000 ₽
2-к, Академика Ландау, 1/4 стр.
Академический
53 м² · Этаж 4 из 9
Новостройка, 2 кв. 2027
Успейте забронировать по акционной цене! Срок акции ограничен! Стоимость квартиры указана со скидкой, ваша экономия составит 410,000 RUB. По всем вопросам обращайтесь в офис продаж, мы вам все подробно расскажем! Квартира с кухней-гостиной и двумя спальнями в Бруснике в Академическом. Особенности планировки: гардеробная, вид во двор, разнесённые спальни, предчистовая отделка, мастер-спальня, балкон. квартиры в нашей базе: АКД05-Ж1.4.2. Квартал ''Брусника в Академическом'' расположен в границах улиц Ландау — Новая. Сегодня Академический — молодой, стремительно развивающийся район, обеспеченный всей необходимой инфраструктурой. С центром его связывают две магистральные улицы — Вильгельма де Геннина и Амундсена. Последняя в перспективе соединится с ЕКАДом, что позволит жителям быстрее выезжать из города. Согласно утвержденному проекту планировки территории в пешеходной доступности от квартала Брусники появятся две школы, рассчитанные на 1700 мест, и шесть детских садов. Рядом со строящимися домами расположены две крупные зелёные зоны — Юго-Западный лесопарк и Преображенский парк. В школах раиона совместно с учеными УрО РАН будет реализован проект ''Малая академия наук'', предпогагающий регулярные экскурсии в отраслевые институты и лаборатории, участие в научных конференциях и мастер-классах. Также в Академическом уже построены, теннисная академия и дворец дзюдо, крупные ТРЦ ''Краснолесье'' и ТРЦ ''Академический'', гипермаркет ''Лента'', в планах — организация ИT-кластера и новых филиалов НИИ. Камерные дворы квартала закрыты от машин. По нашим стандартам 70% их территории покрывает зелень. Деревья, кустарники и травы подобраны таким образом, чтобы в каждый сезон двор оставался красивым и имел свой цвет. Каждый двор разделён на зоны. В одной расположены детские площадки, в другой — места для спорта и тихого отдыха взрослых. Особенность ландшафта дворов — дождевые сады, снижающие нагрузку на ливневую канализацию. Они впитывают сток с крыш и тротуаров, фильтруют его в специально подобранном субстрате и отправляют в пруд. #zsOWed
1/22
27 490 000 ₽
4-к, Шаумяна, 16
Чкаловская14 мин
167 м² · Этаж 8 из 9
Новостройка, 4 кв. 2026
Квартира с кухней-гостиной и четырьмя спальнями в Южных кварталах. Особенности планировки: окна на две стороны, второй санузел, гардеробная, рабочий кабинет, вид во двор, лоджия, разнесённые спальни, предчистовая отделка, летняя кухня на крыше, постирочная, балкон, терраса на крыше. квартиры в нашей базе: ЮКВ11-Ж7.8.2. Жилой район ''Южные кварталы'' расположен в границах улиц Московская, Шаумяна и Фурманова, недалеко от автовокзала. До центра города — 10 минут на автомобиле. До станции метро ''Чкаловская'' — 15 минут пешком. Рядом находится парк, школа олимпийского резерва, несколько гимназий, лицей, детские сады и городская больница. ''Южные кварталы'' — проект комплексного редевелопмента территории, разработанный архитекторами Брусники совместно с голландскими бюро. Он разделен на несколько частей, каждая из которых имеет свой характер. Вдоль оживленной Московской появятся более высокие и крупные дома. Профиль спокойной и очень зелёной Шаумяна сформируют кварталы среднеи этажности. В глубине района мы расположим урбан-виллы, чуть дальше — башни-доминанты. Последние будут играть роль визуальных акцентов и впоследствии станут символами этого места. Ближе к Фурманова мы организуем образовательный кластер. Его составят два детских сада на 300 и 325 мест и школа, рассчитанная на 1500 учеников. Школа будет иметь спортивную зону, которая станет доступна и жителям района. Свяжет территорию сеть общественных пространств. Её центральным звеном станет зелёный променад, проходящий сквозь весь район и соединяющий его с парком 50-летия ВЛКСМ. #ZSciF5
1/24
5 040 000 ₽
1-к, Гастелло, 5 стр.
Уктус, Чкаловский район
20 м² · Этаж 11 из 16
Новостройка, 4 кв. 2026
Студия в районе Шишимская горка. Особенности планировки: лоджия, предчистовая отделка. квартиры в нашей базе: ШГР16-Ж5.11.4. ''Шишимская горка'' — район, состоящий из замкнутых кварталов переменной этажности и башен-доминант. Он расположен на Уктусе, в одной из старейших частей Екатеринбурга. Вокруг уже сформирована необходимая инфраструктура. Рядом — две крупных автомобильных развязки (объездная дорога и Кольцовский тракт), Уктусский лесопарк, торговый центр ''Глобус'', аквапарк, ледовая арена, океанариум, кинотеатр, школы и детские сады. До ближайшей станции метро — 15 минут на общественном транспорте. В основе каждого проекта — принцип mixed-use, который подразумевает объединение в пределах одной локации коммерческой, жилой и развлекательной функций. На первых этажах расположены коммерческие помещения: магазины, кафе, аптеки, спортивные центры и другие полезные сервисы. Между собой кварталы соединены широким пешеходным бульваром с игровыми и спортивными площадками, деревьями и кустарниками, привезенными из европейских питомников. Всего более 30 видов растений. Концепцию благоустройства архитекторы построили на принципах скандинавского натурализма, сочетающего в себе функциональность, простоту и сдержанность. Двор дома — ''Каньон'', это крупный парк, который связывает все очереди строительства и располагается на рельефе с перепадом до 40 метров. Каньон представляет собой каскад ландшафтных зон, связанных рампами и лестницами, которые зигзагом поднимаются в сторону горы Уктус. Стилистически и идеологически ландшафт выполнен в скандинавском стиле. #zSDB0M
1/23
14 090 000 ₽
2-к, Шаумяна, 18 стр.
Чкаловская14 мин
67 м² · Этаж 6 из 24
Новостройка, 3 кв. 2026
Успейте оформить бронирование, пока действует скидка! Срок предложения ограничен! Стоимость квартиры указана со скидкой, ваша экономия составит 630,000 RUB. Информация по телефону, наши менеджеры вам все расскажут! Квартира с кухней-гостиной и двумя спальнями в Южных кварталах. Особенности планировки: второй санузел, гардеробная, предчистовая отделка, балкон. квартиры в нашей базе: ЮК04-А1-9-9.6.8. Жилой район ''Южные кварталы'' расположен в границах улиц Московская, Шаумяна и Фурманова, недалеко от автовокзала. До центра города — 10 минут на автомобиле. До станции метро ''Чкаловская'' — 15 минут пешком. Рядом находится парк, школа олимпийского резерва, несколько гимназий, лицей, детские сады и городская больница. ''Южные кварталы'' — проект комплексного редевелопмента территории, разработанный архитекторами Брусники совместно с голландскими бюро. Он разделен на несколько частей, каждая из которых имеет свой характер. Вдоль оживленной Московской появятся более высокие и крупные дома. Профиль спокойной и очень зелёной Шаумяна сформируют кварталы среднеи этажности. В глубине района мы расположим урбан-виллы, чуть дальше — башни-доминанты. Последние будут играть роль визуальных акцентов и впоследствии станут символами этого места. Ближе к Фурманова мы организуем образовательный кластер. Его составят два детских сада на 300 и 325 мест и школа, рассчитанная на 1500 учеников. Школа будет иметь спортивную зону, которая станет доступна и жителям района. Свяжет территорию сеть общественных пространств. Её центральным звеном станет зелёный променад, проходящий сквозь весь район и соединяющий его с парком 50-летия ВЛКСМ. #ZSSU94

Подбор риелтора

Риелтор поможет купить или продать любую недвижимость

Оставить заявку
1/23
10 430 000 ₽
3-к, Академика Ландау, 1/4 стр.
Академический
85 м² · Этаж 2 из 9
Новостройка, 2 кв. 2027
Спешите оформить бронирование на этих условиях! Период акции ограничен! Стоимость квартиры указана со скидкой, ваша экономия составит 280,000 RUB. Звоните, мы вам все подробно расскажем! Квартира с кухней-гостиной и тремя спальнями в Бруснике в Академическом. Особенности планировки: окна на две стороны, гардеробная, вид во двор, разнесённые спальни, предчистовая отделка, мастер-спальня, балкон. квартиры в нашей базе: АКД05-Ж2.2.1. Квартал ''Брусника в Академическом'' расположен в границах улиц Ландау — Новая. Сегодня Академический — молодой, стремительно развивающийся район, обеспеченный всей необходимой инфраструктурой. С центром его связывают две магистральные улицы — Вильгельма де Геннина и Амундсена. Последняя в перспективе соединится с ЕКАДом, что позволит жителям быстрее выезжать из города. Согласно утвержденному проекту планировки территории в пешеходной доступности от квартала Брусники появятся две школы, рассчитанные на 1700 мест, и шесть детских садов. Рядом со строящимися домами расположены две крупные зелёные зоны — Юго-Западный лесопарк и Преображенский парк. В школах раиона совместно с учеными УрО РАН будет реализован проект ''Малая академия наук'', предпогагающий регулярные экскурсии в отраслевые институты и лаборатории, участие в научных конференциях и мастер-классах. Также в Академическом уже построены, теннисная академия и дворец дзюдо, крупные ТРЦ ''Краснолесье'' и ТРЦ ''Академический'', гипермаркет ''Лента'', в планах — организация ИT-кластера и новых филиалов НИИ. Камерные дворы квартала закрыты от машин. По нашим стандартам 70% их территории покрывает зелень. Деревья, кустарники и травы подобраны таким образом, чтобы в каждый сезон двор оставался красивым и имел свой цвет. Каждый двор разделён на зоны. В одной расположены детские площадки, в другой — места для спорта и тихого отдыха взрослых. Особенность ландшафта дворов — дождевые сады, снижающие нагрузку на ливневую канализацию. Они впитывают сток с крыш и тротуаров, фильтруют его в специально подобранном субстрате и отправляют в пруд. #Z50se2
1/24
17 620 000 ₽
3-к, Гастелло, 17.1
Уктус, Чкаловский район
139 м² · Этаж 8 из 8
Новостройка, 4 кв. 2027
Двухуровневая квартира с кухней-гостиной и тремя спальнями в районе Шишимская горка. Особенности планировки: двухуровневая, лоджия, разнесённые спальни, предчистовая отделка, мастер-спальня, терраса на крыше. квартиры в нашей базе: ШГР17.1-Ж3.8.3. ''Шишимская горка'' — район, состоящий из замкнутых кварталов переменной этажности и башен-доминант. Он расположен на Уктусе, в одной из старейших частей Екатеринбурга. Вокруг уже сформирована необходимая инфраструктура. Рядом — две крупных автомобильных развязки (объездная дорога и Кольцовский тракт), Уктусский лесопарк, торговый центр ''Глобус'', аквапарк, ледовая арена, океанариум, кинотеатр, школы и детские сады. До ближайшей станции метро — 15 минут на общественном транспорте. В основе каждого проекта — принцип mixed-use, который подразумевает объединение в пределах одной локации коммерческой, жилой и развлекательной функций. На первых этажах расположены коммерческие помещения: магазины, кафе, аптеки, спортивные центры и другие полезные сервисы. Между собой кварталы соединены широким пешеходным бульваром с игровыми и спортивными площадками, деревьями и кустарниками, привезенными из европейских питомников. Всего более 30 видов растений. Концепцию благоустройства архитекторы построили на принципах скандинавского натурализма, сочетающего в себе функциональность, простоту и сдержанность. Двор дома — ''Каньон'', это крупный парк, который связывает все очереди строительства и располагается на рельефе с перепадом до 40 метров. Каньон представляет собой каскад ландшафтных зон, связанных рампами и лестницами, которые зигзагом поднимаются в сторону горы Уктус. Стилистически и идеологически ландшафт выполнен в скандинавском стиле. #2mztdg
1/24
26 970 000 ₽
3-к, Печерская, 6
Уральская10 мин
128 м² · Этаж 7 из 24
Новостройка, 4 кв. 2026
Квартира с кухней-гостиной и тремя спальнями в квартале ''На Некрасова''. Особенности планировки: второй санузел, лоджия, разнесённые спальни, предчистовая отделка, мастер-спальня. квартиры в нашей базе: НКР02-Ж1.7.1. Квартал ''На Некрасова'' состоит из четырёх домов переменной высотности от 7 до 25 этажей с тихими дворами и подземным паркингом. Особенность квартала — общественные пространства и благоустройство нового уровня: городская площадь с фонтаном, центральный пешеходный бульвар, ландшафтный парк, камерные сады и зелёные кровли домов. Из окон квартир открывается вид на Исеть. В квартале спроектированы помещения под магазины, кафе, аптеки и соседский центр. Проект расположен в центре Екатеринбурга в границах улиц Печерская — Некрасова рядом с управлением железной дороги и крупной транспортной магистралью — улицей Челюскинцев. В пешей доступности — школа 208, сквер, санаторий, фитнес-центр с бассейном. В 10 минутах ходьбы находится станция метро ''Динамо'', Олимпийская набережная, Дворец игровых видов спорта, спортивный комплекс ''Динамо'' и киноконцертный театр ''Космос''. Особенность проекта — цепочка связанных общественных пространств. Новая площадь за зданием управления железной дороги переходит в бульвар и сквер. В центре площади — фонтан. На бульваре расположена детская площадка, спортивная зона и беседки-перголы для спокойного отдыха. Вход во двор организован через колоннаду. Планировочно он разделён на две части. Парадный партер с большим количеством стриженых растений, фонтанами, цветущими кустарниками и более ''домашняя'', уютная зона, где высажены деревья и низкорослые хвойные растения, многолетники. В центре двора — две детские площадки. #25Oogo
1/23
18 480 000 ₽
3-к, Шаумяна, 16
Чкаловская14 мин
95 м² · Этаж 4 из 7
Новостройка, 4 кв. 2026
Квартира с кухней-гостиной и тремя спальнями в Южных кварталах. Особенности планировки: окна на две стороны, гардеробная, вид во двор, разнесённые спальни, предчистовая отделка, мастер-спальня, балкон. квартиры в нашей базе: ЮКВ11-Ж4.4.8. Жилой район ''Южные кварталы'' расположен в границах улиц Московская, Шаумяна и Фурманова, недалеко от автовокзала. До центра города — 10 минут на автомобиле. До станции метро ''Чкаловская'' — 15 минут пешком. Рядом находится парк, школа олимпийского резерва, несколько гимназий, лицей, детские сады и городская больница. ''Южные кварталы'' — проект комплексного редевелопмента территории, разработанный архитекторами Брусники совместно с голландскими бюро. Он разделен на несколько частей, каждая из которых имеет свой характер. Вдоль оживленной Московской появятся более высокие и крупные дома. Профиль спокойной и очень зелёной Шаумяна сформируют кварталы среднеи этажности. В глубине района мы расположим урбан-виллы, чуть дальше — башни-доминанты. Последние будут играть роль визуальных акцентов и впоследствии станут символами этого места. Ближе к Фурманова мы организуем образовательный кластер. Его составят два детских сада на 300 и 325 мест и школа, рассчитанная на 1500 учеников. Школа будет иметь спортивную зону, которая станет доступна и жителям района. Свяжет территорию сеть общественных пространств. Её центральным звеном станет зелёный променад, проходящий сквозь весь район и соединяющий его с парком 50-летия ВЛКСМ. #2szuDt
1/24
19 360 000 ₽
3-к, Механический переулок, 15/2 стр.
Проспект Космонавтов7 мин
150 м² · Этаж 1 из 8
Новостройка, 3 кв. 2026
Двухуровневая квартира с кухней-гостиной и тремя спальнями в Северном квартале. Особенности планировки: второй санузел, гардеробная, окно в санузле, двухуровневая, вид во двор, отдельный вход, разнесённые спальни, предчистовая отделка, мастер-спальня, терраса, постирочная. квартиры в нашей базе: СКВ03.2-Ж5.1.2. ''Северный квартал'' расположен в квадрате улиц Стачек, Войкова, Каширской и переулка Ритслянда. Проект находится на тихой территории между крупными городскими магистралями: проспектом Космонавтов и улицей Старых Большевиков, в 5 минутах пешком от метро ''Проспект Космонавтов''. Помимо транспортной доступности район имеет развитую инфраструктуру: торговые центры, продуктовые магазины, аптеки, кафе, поликлиники, детские центры и другие повседневные сервисы рядом. Оживлённое уличное движение останется за пределами квартала, а внутри создается собственная природная среда с зонами для вечерних прогулок, расслабленного отдыха, спорта и игр. Между домов проходит широкий пешеходный бульвар с разнообразным ландшафтом. Он объединяет общественные пространства между кварталами и переходит в площадь-сквер с фонтаном. Проект благоустройства связывает приватные дворы кварталов, парковое пространство вокруг урбан-вилл, игровые комплексы для детей разных возрастов и спортивные площадки в единый ландшафт. Внутриквартальный двор тихий и спокойный. За счёт разной этажности и арок во дворе — много света. Здесь будет высажено до 40 видов растений — деревья, кустарники, цветы, злаковые травы и газон. Деревья привезут уже взрослыми со сформированной кроной. Растения цветут в разное время года, имеют разную плотность и высоту. Всё это сделано для того, чтобы двор был разнообразным и в каждое время года имел свой цвет. #2WcBOo
1/24
10 610 000 ₽
2-к, Гастелло, 17.1
Уктус, Чкаловский район
69 м² · Этаж 2 из 8
Новостройка, 4 кв. 2027
Успейте оформить бронирование по этой цене! Предложение ограничено! Стоимость квартиры указана со скидкой, ваша экономия составит 540,000 RUB. Звоните, мы вам все подробно расскажем! Квартира с кухней-гостиной и двумя спальнями в районе Шишимская горка. Особенности планировки: второй санузел, вид во двор, разнесённые спальни, предчистовая отделка, балкон. квартиры в нашей базе: ШГР17.1-Ж4.2.6. ''Шишимская горка'' — район, состоящий из замкнутых кварталов переменной этажности и башен-доминант. Он расположен на Уктусе, в одной из старейших частей Екатеринбурга. Вокруг уже сформирована необходимая инфраструктура. Рядом — две крупных автомобильных развязки (объездная дорога и Кольцовский тракт), Уктусский лесопарк, торговый центр ''Глобус'', аквапарк, ледовая арена, океанариум, кинотеатр, школы и детские сады. До ближайшей станции метро — 15 минут на общественном транспорте. В основе каждого проекта — принцип mixed-use, который подразумевает объединение в пределах одной локации коммерческой, жилой и развлекательной функций. На первых этажах расположены коммерческие помещения: магазины, кафе, аптеки, спортивные центры и другие полезные сервисы. Между собой кварталы соединены широким пешеходным бульваром с игровыми и спортивными площадками, деревьями и кустарниками, привезенными из европейских питомников. Всего более 30 видов растений. Концепцию благоустройства архитекторы построили на принципах скандинавского натурализма, сочетающего в себе функциональность, простоту и сдержанность. Двор дома — ''Каньон'', это крупный парк, который связывает все очереди строительства и располагается на рельефе с перепадом до 40 метров. Каньон представляет собой каскад ландшафтных зон, связанных рампами и лестницами, которые зигзагом поднимаются в сторону горы Уктус. Стилистически и идеологически ландшафт выполнен в скандинавском стиле. #z6ZTAm
1/24
15 910 000 ₽
1-к, Печерская, 6
Уральская10 мин
49 м² · Этаж 13 из 24
Новостройка, 4 кв. 2026
Спешите оформить бронирование на этих условиях! Предложение ограничено! Стоимость квартиры указана со скидкой, ваша экономия составит 870,000 RUB. По всем вопросам обращайтесь в офис продаж, наши менеджеры вам все расскажут! Квартира с кухней-гостиной и одной спальней в квартале ''На Некрасова''. Особенности планировки: гардеробная, лоджия, предчистовая отделка. квартиры в нашей базе: НКР02-Ж1.13.3. Квартал ''На Некрасова'' состоит из четырёх домов переменной высотности от 7 до 25 этажей с тихими дворами и подземным паркингом. Особенность квартала — общественные пространства и благоустройство нового уровня: городская площадь с фонтаном, центральный пешеходный бульвар, ландшафтный парк, камерные сады и зелёные кровли домов. Из окон квартир открывается вид на Исеть. В квартале спроектированы помещения под магазины, кафе, аптеки и соседский центр. Проект расположен в центре Екатеринбурга в границах улиц Печерская — Некрасова рядом с управлением железной дороги и крупной транспортной магистралью — улицей Челюскинцев. В пешей доступности — школа 208, сквер, санаторий, фитнес-центр с бассейном. В 10 минутах ходьбы находится станция метро ''Динамо'', Олимпийская набережная, Дворец игровых видов спорта, спортивный комплекс ''Динамо'' и киноконцертный театр ''Космос''. Особенность проекта — цепочка связанных общественных пространств. Новая площадь за зданием управления железной дороги переходит в бульвар и сквер. В центре площади — фонтан. На бульваре расположена детская площадка, спортивная зона и беседки-перголы для спокойного отдыха. Вход во двор организован через колоннаду. Планировочно он разделён на две части. Парадный партер с большим количеством стриженых растений, фонтанами, цветущими кустарниками и более ''домашняя'', уютная зона, где высажены деревья и низкорослые хвойные растения, многолетники. В центре двора — две детские площадки. #z4amii
1/24
7 260 000 ₽
1-к, Гастелло, 17.1
Уктус, Чкаловский район
42 м² · Этаж 6 из 16
Новостройка, 4 кв. 2027
Квартира с кухней-гостиной и одной спальней в районе Шишимская горка. Особенности планировки: предчистовая отделка, балкон. квартиры в нашей базе: ШГР17.1-Ж2.6.5. ''Шишимская горка'' — район, состоящий из замкнутых кварталов переменной этажности и башен-доминант. Он расположен на Уктусе, в одной из старейших частей Екатеринбурга. Вокруг уже сформирована необходимая инфраструктура. Рядом — две крупных автомобильных развязки (объездная дорога и Кольцовский тракт), Уктусский лесопарк, торговый центр ''Глобус'', аквапарк, ледовая арена, океанариум, кинотеатр, школы и детские сады. До ближайшей станции метро — 15 минут на общественном транспорте. В основе каждого проекта — принцип mixed-use, который подразумевает объединение в пределах одной локации коммерческой, жилой и развлекательной функций. На первых этажах расположены коммерческие помещения: магазины, кафе, аптеки, спортивные центры и другие полезные сервисы. Между собой кварталы соединены широким пешеходным бульваром с игровыми и спортивными площадками, деревьями и кустарниками, привезенными из европейских питомников. Всего более 30 видов растений. Концепцию благоустройства архитекторы построили на принципах скандинавского натурализма, сочетающего в себе функциональность, простоту и сдержанность. Двор дома — ''Каньон'', это крупный парк, который связывает все очереди строительства и располагается на рельефе с перепадом до 40 метров. Каньон представляет собой каскад ландшафтных зон, связанных рампами и лестницами, которые зигзагом поднимаются в сторону горы Уктус. Стилистически и идеологически ландшафт выполнен в скандинавском стиле. #2MWBMi
1/12
4 880 000 ₽
1-к
Старая Сортировка, Железнодорожный район
30 м² · Этаж 3 из 7
Новостройка, 4 кв. 2027
Продается однокомнатная студия с предчистовой отделкой в ЖК ''Квартал Траектория'' на 3 этаже. Общая площадь: 30.7 кв.м. Высота потолков 2.82 м. Дом монолитный, многоподъездный, переменной этажности, от 7 до 25 этажей. Квартира находится в 7-й секции высотой 7 этажей в корпусе 1-1. На этаже 8 квартир. В подъезде 1 грузовой лифт. Начало строительства - 4 квартал 2025 года. Окончание строительства - 4 квартал 2027 года. Оформление сделки по договору долевого участия. Студия в квартале ''Траектория''. Особенности планировки: стартовая цена, предчистовая отделка, балкон. квартиры в нашей базе: МНВ01-Ж7.3.4. Квартал ''Траектория'' строится в границах улиц Билимбаевской, Расточной, Монтажников и Маневровой Раньше здесь находился оборонный завод 5-ЦАРЗ, основанный в 1945 году. После войны он ремонтировал военную и грузовую технику — от ''Виллисов'' и ''Студебекеров'' до советских ЗИС-5 и ГАЗ-67. Сортировка — район с развитой инфраструктурой, обжитыми жилыми кварталами разных эпох и большим количеством парков. До центра Екатеринбурга — 20 минут на машине. Туда же можно отправиться на автобусе: ближайшая остановка общественного транспорта — в 4 минутах от ''Траектории''. Рядом с ''Траекторией'' расположены магазины, торговый центр, детские сады, школы, поликлиники и полезные сервисы, а также другой проект Брусники — квартал ''Депо''. Если хочется развлечений, можно отправиться в ТРЦ ''Карнавал'' и парк с аттракционами ''Таганская слобода'' — дорога туда займёт не более 10 минут на машине. Квартал ''Траектория'' — первый этап комплексного развития территории, которую раньше занимали производственные здания. На месте бывших цехов Брусника создаст дружелюбную среду и комфортное пешеходное пространство для всего района. Для озеленения квартала мы подобрали больше 60 видов растений: ольху, липу, клён, иву, грушу, вишню, сирень, барбарис, гортензию, смородину, ирис, декоративные травы. Они цветут в разное время года и постоянно меняют настроение двора. В ''Траектории'' мы предусмотрели несколько общественных пространств, открытых для всех горожан: встречающий сквер, лесопарк у храма и событийный сквер между домами. Когда захочется тишины и уединения, можно устроить прогулку во внутренних дворах: в них нет машин и посторонних, зато много зелени, света и мест для отдыха. Каждый двор в квартале ''Траектория'' — продолжение квартиры, только под открытым небом. Здесь можно прогуляться босиком по траве, устроить утреннюю йогу, почитать книгу в гамаке или отправить детей поиграть, не переживая за их безопасность. Мы закроем дворы от машин, чтобы создать безопасную среду для отдыха. Применим натуральные материалы в отделке малых архитектурных форм — дерево, камень, металл без лишней обработки. Внутри каждого двора — детские площадки, перголы с тенистыми зонами, мягкие газоны и места для общения с соседями. #ZM8b1Z
1/23
6 190 000 ₽
1-к, Таватуйская, 20/7 стр.
Старая Сортировка, Железнодорожный район
35 м² · Этаж 6 из 7
Новостройка, 2 кв. 2027
Квартира с кухней-гостиной и одной спальней в квартале ''Депо''. Особенности планировки: вид во двор, предчистовая отделка, балкон. квартиры в нашей базе: ДЕП07-Ж3.6.1. Квартал ''Депо'' расположен в активно развивающейся части Сортировки, на месте, где раньше был завод ''Электротранс''. Преимущества Сортировки — развитая инфраструктура. В пешей доступности — супермаркеты, остановки городского транспорта, поликлиники, детские сады, школы, гимназии, торговые центры, автоцентры, рынок с большим и доступным по стоимости выбором товаров, парк РЖД и парк с аттракционами Таганская Слобода. Квартал ''Депо'' расположен в границах улиц Пехотинцев — Таватуйская — Сортировочная — Новая (проектируется). Благоустройство квартала основано на трёх принципах. Первый — особое внимание к воде. Архитекторы Брусники создадут внутри застройки систему дождевых садов, которые будут фильтровать сток (в том числе с крыш зданий) и снижать нагрузку на ливневую канализацию . Второй принцип — разнообразие. Мы высадим на улицах ивы, липы, яблони разных сортов, спиреи, лапчатку и дерен, а во дворах — березы, липы, черёмухи, пузыреплодник, кизильник и манчжурский орех, который в Екатеринбурге почти не представлен. Третий принцип — зонирование. Центральный бульвар мы насытим площадками для игр детей и спокойного отдыха взрослых, на площади перед детским садом расположим окруженные деревьями плэйхабы, летние веранды кафе, открытое пространство с запоминающимся артом. #z5cmdf
1/23
10 040 000 ₽
1-к, Шаумяна, 16
Чкаловская14 мин
42 м² · Этаж 2 из 9
Новостройка, 4 кв. 2026
Квартира с кухней-гостиной и одной спальней в Южных кварталах. Особенности планировки: лоджия, предчистовая отделка. квартиры в нашей базе: ЮКВ11-Ж2.2.3. Жилой район ''Южные кварталы'' расположен в границах улиц Московская, Шаумяна и Фурманова, недалеко от автовокзала. До центра города — 10 минут на автомобиле. До станции метро ''Чкаловская'' — 15 минут пешком. Рядом находится парк, школа олимпийского резерва, несколько гимназий, лицей, детские сады и городская больница. ''Южные кварталы'' — проект комплексного редевелопмента территории, разработанный архитекторами Брусники совместно с голландскими бюро. Он разделен на несколько частей, каждая из которых имеет свой характер. Вдоль оживленной Московской появятся более высокие и крупные дома. Профиль спокойной и очень зелёной Шаумяна сформируют кварталы среднеи этажности. В глубине района мы расположим урбан-виллы, чуть дальше — башни-доминанты. Последние будут играть роль визуальных акцентов и впоследствии станут символами этого места. Ближе к Фурманова мы организуем образовательный кластер. Его составят два детских сада на 300 и 325 мест и школа, рассчитанная на 1500 учеников. Школа будет иметь спортивную зону, которая станет доступна и жителям района. Свяжет территорию сеть общественных пространств. Её центральным звеном станет зелёный променад, проходящий сквозь весь район и соединяющий его с парком 50-летия ВЛКСМ. #Zm8B2e
1/26
5 610 000 ₽
1-к, Стачек, 64 стр.
Проспект Космонавтов7 мин
22 м² · Этаж 3 из 8
Новостройка, 3 кв. 2027
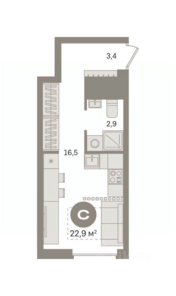
Студия в Северном квартале. Особенности планировки: вид во двор, предчистовая отделка. квартиры в нашей базе: СКВ04.2-Ж1.3.6. ''Северный квартал'' расположен в квадрате улиц Стачек, Войкова, Каширской и переулка Ритслянда. Проект находится на тихой территории между крупными городскими магистралями: проспектом Космонавтов и улицей Старых Большевиков, в 5 минутах пешком от метро ''Проспект Космонавтов''. Помимо транспортной доступности район имеет развитую инфраструктуру: торговые центры, продуктовые магазины, аптеки, кафе, поликлиники, детские центры и другие повседневные сервисы рядом. Оживлённое уличное движение останется за пределами квартала, а внутри создается собственная природная среда с зонами для вечерних прогулок, расслабленного отдыха, спорта и игр. Между домов проходит широкий пешеходный бульвар с разнообразным ландшафтом. Он объединяет общественные пространства между кварталами и переходит в площадь-сквер с фонтаном. Проект благоустройства связывает приватные дворы кварталов, парковое пространство вокруг урбан-вилл, игровые комплексы для детей разных возрастов и спортивные площадки в единый ландшафт. Внутриквартальный двор тихий и спокойный. За счёт разной этажности и арок во дворе — много света. Здесь будет высажено до 40 видов растений — деревья, кустарники, цветы, злаковые травы и газон. Деревья привезут уже взрослыми со сформированной кроной. Растения цветут в разное время года, имеют разную плотность и высоту. Всё это сделано для того, чтобы двор был разнообразным и в каждое время года имел свой цвет. #zMZ7em
1/23
7 460 000 ₽
2-к, Таватуйская, 20/7 стр.
Старая Сортировка, Железнодорожный район
52 м² · Этаж 3 из 7
Новостройка, 2 кв. 2027
Квартира с кухней-гостиной и двумя спальнями в квартале ''Депо''. Особенности планировки: гардеробная, вид во двор, разнесённые спальни, предчистовая отделка, мастер-спальня, балкон. квартиры в нашей базе: ДЕП07-Ж2.3.6. Квартал ''Депо'' расположен в активно развивающейся части Сортировки, на месте, где раньше был завод ''Электротранс''. Преимущества Сортировки — развитая инфраструктура. В пешей доступности — супермаркеты, остановки городского транспорта, поликлиники, детские сады, школы, гимназии, торговые центры, автоцентры, рынок с большим и доступным по стоимости выбором товаров, парк РЖД и парк с аттракционами Таганская Слобода. Квартал ''Депо'' расположен в границах улиц Пехотинцев — Таватуйская — Сортировочная — Новая (проектируется). Благоустройство квартала основано на трёх принципах. Первый — особое внимание к воде. Архитекторы Брусники создадут внутри застройки систему дождевых садов, которые будут фильтровать сток (в том числе с крыш зданий) и снижать нагрузку на ливневую канализацию . Второй принцип — разнообразие. Мы высадим на улицах ивы, липы, яблони разных сортов, спиреи, лапчатку и дерен, а во дворах — березы, липы, черёмухи, пузыреплодник, кизильник и манчжурский орех, который в Екатеринбурге почти не представлен. Третий принцип — зонирование. Центральный бульвар мы насытим площадками для игр детей и спокойного отдыха взрослых, на площади перед детским садом расположим окруженные деревьями плэйхабы, летние веранды кафе, открытое пространство с запоминающимся артом. #zSCT3I
1/12
5 760 000 ₽
1-к
Старая Сортировка, Железнодорожный район
36 м² · Этаж 3 из 25
Новостройка, 4 кв. 2027
1-комн. квартира с предчистовой отделкой в ЖК ''Квартал Траектория'' на 3 этаже. Общая площадь: 36.5 кв.м., жилая: 9 кв.м., площадь просторной кухни-столовой: 14.4 кв.м. Все окна выходят на одну сторону. В квартире один балкон, один совмещенный санузел. Высота потолков 2.82 м. Дом монолитный, многоподъездный, переменной этажности, от 7 до 25 этажей. Квартира находится в 1-й секции высотой 25 этажей в корпусе 1-1. На этаже 12 квартир. В подъезде 2 пассажирских и 1 грузовой лифт. Начало строительства - 4 квартал 2025 года. Окончание строительства - 4 квартал 2027 года. Оформление сделки по договору долевого участия. Квартира с кухней-гостиной и одной спальней в квартале ''Траектория''. Особенности планировки: стартовая цена, предчистовая отделка, балкон. квартиры в нашей базе: МНВ01-Ж1.3.1. Квартал ''Траектория'' строится в границах улиц Билимбаевской, Расточной, Монтажников и Маневровой Раньше здесь находился оборонный завод 5-ЦАРЗ, основанный в 1945 году. После войны он ремонтировал военную и грузовую технику — от ''Виллисов'' и ''Студебекеров'' до советских ЗИС-5 и ГАЗ-67. Сортировка — район с развитой инфраструктурой, обжитыми жилыми кварталами разных эпох и большим количеством парков. До центра Екатеринбурга — 20 минут на машине. Туда же можно отправиться на автобусе: ближайшая остановка общественного транспорта — в 4 минутах от ''Траектории''. Рядом с ''Траекторией'' расположены магазины, торговый центр, детские сады, школы, поликлиники и полезные сервисы, а также другой проект Брусники — квартал ''Депо''. Если хочется развлечений, можно отправиться в ТРЦ ''Карнавал'' и парк с аттракционами ''Таганская слобода'' — дорога туда займёт не более 10 минут на машине. Квартал ''Траектория'' — первый этап комплексного развития территории, которую раньше занимали производственные здания. На месте бывших цехов Брусника создаст дружелюбную среду и комфортное пешеходное пространство для всего района. Для озеленения квартала мы подобрали больше 60 видов растений: ольху, липу, клён, иву, грушу, вишню, сирень, барбарис, гортензию, смородину, ирис, декоративные травы. Они цветут в разное время года и постоянно меняют настроение двора. В ''Траектории'' мы предусмотрели несколько общественных пространств, открытых для всех горожан: встречающий сквер, лесопарк у храма и событийный сквер между домами. Когда захочется тишины и уединения, можно устроить прогулку во внутренних дворах: в них нет машин и посторонних, зато много зелени, света и мест для отдыха. Каждый двор в квартале ''Траектория'' — продолжение квартиры, только под открытым небом. Здесь можно прогуляться босиком по траве, устроить утреннюю йогу, почитать книгу в гамаке или отправить детей поиграть, не переживая за их безопасность. Мы закроем дворы от машин, чтобы создать безопасную среду для отдыха. Применим натуральные материалы в отделке малых архитектурных форм — дерево, камень, металл без лишней обработки. Внутри каждого двора — детские площадки, перголы с тенистыми зонами, мягкие газоны и места
1/24
22 010 000 ₽
2-к, Печерская, 6
Уральская10 мин
99 м² · Этаж 2 из 9
Новостройка, 4 кв. 2026
Квартира с кухней-гостиной и двумя спальнями в квартале ''На Некрасова''. Особенности планировки: второй санузел, гардеробная, окно в санузле, лоджия, разнесённые спальни, предчистовая отделка, мастер-спальня, балкон. квартиры в нашей базе: НКР02-Ж2.2.1. Квартал ''На Некрасова'' состоит из четырёх домов переменной высотности от 7 до 25 этажей с тихими дворами и подземным паркингом. Особенность квартала — общественные пространства и благоустройство нового уровня: городская площадь с фонтаном, центральный пешеходный бульвар, ландшафтный парк, камерные сады и зелёные кровли домов. Из окон квартир открывается вид на Исеть. В квартале спроектированы помещения под магазины, кафе, аптеки и соседский центр. Проект расположен в центре Екатеринбурга в границах улиц Печерская — Некрасова рядом с управлением железной дороги и крупной транспортной магистралью — улицей Челюскинцев. В пешей доступности — школа 208, сквер, санаторий, фитнес-центр с бассейном. В 10 минутах ходьбы находится станция метро ''Динамо'', Олимпийская набережная, Дворец игровых видов спорта, спортивный комплекс ''Динамо'' и киноконцертный театр ''Космос''. Особенность проекта — цепочка связанных общественных пространств. Новая площадь за зданием управления железной дороги переходит в бульвар и сквер. В центре площади — фонтан. На бульваре расположена детская площадка, спортивная зона и беседки-перголы для спокойного отдыха. Вход во двор организован через колоннаду. Планировочно он разделён на две части. Парадный партер с большим количеством стриженых растений, фонтанами, цветущими кустарниками и более ''домашняя'', уютная зона, где высажены деревья и низкорослые хвойные растения, многолетники. В центре двора — две детские площадки. #z4azIz
1/23
5 210 000 ₽
1-к, Академика Ландау, 1/4 стр.
Академический
26 м² · Этаж 6 из 9
Новостройка, 2 кв. 2027
Студия в Бруснике в Академическом. Особенности планировки: вид во двор, предчистовая отделка, балкон. квартиры в нашей базе: АКД05-Ж1.6.1. Квартал ''Брусника в Академическом'' расположен в границах улиц Ландау — Новая. Сегодня Академический — молодой, стремительно развивающийся район, обеспеченный всей необходимой инфраструктурой. С центром его связывают две магистральные улицы — Вильгельма де Геннина и Амундсена. Последняя в перспективе соединится с ЕКАДом, что позволит жителям быстрее выезжать из города. Согласно утвержденному проекту планировки территории в пешеходной доступности от квартала Брусники появятся две школы, рассчитанные на 1700 мест, и шесть детских садов. Рядом со строящимися домами расположены две крупные зелёные зоны — Юго-Западный лесопарк и Преображенский парк. В школах раиона совместно с учеными УрО РАН будет реализован проект ''Малая академия наук'', предпогагающий регулярные экскурсии в отраслевые институты и лаборатории, участие в научных конференциях и мастер-классах. Также в Академическом уже построены, теннисная академия и дворец дзюдо, крупные ТРЦ ''Краснолесье'' и ТРЦ ''Академический'', гипермаркет ''Лента'', в планах — организация ИT-кластера и новых филиалов НИИ. Камерные дворы квартала закрыты от машин. По нашим стандартам 70% их территории покрывает зелень. Деревья, кустарники и травы подобраны таким образом, чтобы в каждый сезон двор оставался красивым и имел свой цвет. Каждый двор разделён на зоны. В одной расположены детские площадки, в другой — места для спорта и тихого отдыха взрослых. Особенность ландшафта дворов — дождевые сады, снижающие нагрузку на ливневую канализацию. Они впитывают сток с крыш и тротуаров, фильтруют его в специально подобранном субстрате и отправляют в пруд. #ZSo4cE
1/15
8 166 776 ₽
1-к, Базовый переулок, 2 стр.
Шарташский рынок, Октябрьский район
41 м² · Этаж 3 из 25
Новостройка, 1 кв. 2026
Премиум кварталы ''Маяковка'' представляют собой архитектурную композицию, сочетающую в себе высотные башни и пять дворовых блоков. Это величественное сооружение высотных башен существенно выделяется на фоне городского ландшафта, создавая привлекательный и изысканный облик района, формируя город в городе.
1/12
7 330 000 ₽
2-к, Монтерская, 8/3 стр.
Вторчермет, Чкаловский район
49 м² · Этаж 2 из 29
Новостройка, 3 кв. 2028
РАЗУМ на Титова — новый квартал от федерального девелопера ''РАЗУМ'' с 12-летним опытом создания проектов. РАЗУМ на Титова это 4 дома от 13 до 29 этажей на границах улиц Монтёрская, Титова и Смоленская. Квартал в Чкаловском районе создан по концепции ''город в городе'' и входит в кластер ''Южная Ботаника''. В шаговой доступности: 5 детских садов, 4 школы, 3 прогулочных зоны, магазины, досуговые центры. В концепции благоустройства создан отдельный мир, где дети развиваются, знакомятся и открывают новое. РАЗУМ на Титова окружён зеленью: вечнозеленые растения и хвойники, кустарники, многолетники, злаки и деревья. Пространство для отдыха в полной гармонии с природой расположено на стилобате первых этажей. Здесь есть гамаки, шезлонги из натуральных материалов, перголы со скамьями и столом для работы. Вечером эта зона превращается в место с уютом и мягким светом. Главные места для прогулок круглый год — центральный бульвар и площадь жилого квартала РАЗУМ на Титова, где проходят ярмарки, заливаются каток и горки, устраиваются праздники. РАЗУМ на Титова — это: развитая инфраструктура, многоуровневое освещение, благоустройство квартала и внутри проекта (2-уровневое благоустройство), 60 % озеленения территории, паркинг, соседский центр, квартиры с террасами и балконами, дизайнерские входные группы, коммерческие помещения. В комплексе представлены десятки планировок с площадью квартир от 26,24 м² до 66,58 м². Каждая учитывает сценарии жизни, эргономичность и функциональность каждого квадратного метра. Для тех, кто ценит загородный формат жизни в спокойствии, но хочет оставаться в центре города, хорошим вариантом станут квартиры с террасами. Они расположены по четырём сторонам домов, а это значит, что из них открываются панорамные виды на 180 градусов с обзором на город и квартал. На террасах приятно проводить вечера, работать с комфортом, любуясь восходами и закатами, тренироваться или отдыхать.
1/32
4 544 210 ₽
1-к, Латвийская, 5.5
Компрессорный, Октябрьский район
37 м² · Этаж 16 из 25
Новостройка, 4 кв. 2025
Продается 1-комн. квартира с европланировкой, площадью 37.9 м2 в монолитно-кирпичной новостройке в 12 мин. пешком от м.Ботаническая. Возможен вариант покупки с использованием ипотечных средств, есть рассрочка. Жилая площадь 20 м2, кухня 5.1 м2, чистовая отделка. Раздельных санузлов - нет, балконов - нет, лоджий - нет. Квартира располагается на 16 этаже 25-этажного дома в ЖК Хрустальные Ключи. Застройщик - ЛСР, сдача дома - IV квартал 2025 года, высота потолков 2.5 м. Парковка автомобилей - наземная. Инфраструктура: школа, детский сад, детские площадки, спортивные площадки, супермаркет. Жилой комплекс ''Хрустальные ключи'' — это место, куда хочется переехать. Здесь по утрам можно пить кофе с видом на сосновый лес. А по вечерам кататься на велосипедах по парку ''Малый Исток'' или заниматься спортом на территории физкультурно-оздоровительного комплекса ''Факел'', расположенного поблизости. В состав жилого комплекса ''Хрустальные ключи'' входит шесть панельных домов класса ''комфорт'' с разноцветными фасадами. Высота зданий варьируется от 9 до 25 этажей. ''Хрустальные ключи'' располагаются в юго-восточной части Екатеринбурга, в микрорайоне Компрессорный Октябрьского района, недалеко от Сибирского тракта и ЕКАД, примерно в 13 километрах от центра города. Рядом находятся сразу две платформы (''Компрессорный завод'' и ''Исток''), от которых можно за полчаса доехать до железнодорожного вокзала ''Екатеринбург-Пасс.''. До центра Екатеринбурга от комплекса также можно доехать на нескольких автобусах и маршрутных такси. Позвоните и узнайте условия покупки прямо сейчас!
  • 2
  • 3
  • 4
  • 5
  1. Недвижимость в Екатеринбурге
  2. Продажа
  3. Квартиры
  4. 35867 объявлений

Может быть полезно

Ипотека

Узнайте за 10 минут, какой кредит вам одобрят банки

Подбор риелтора

Риелтор поможет купить или продать любую недвижимость

Журнал

«31 декабря сгорел мой дом». Дневник блогера, который восстанавливает сгоревший коттедж «31 декабря сгорел мой дом». Дневник блогера, который восстанавливает сгоревший коттедж
«Это были легкие города»: в Екатеринбурге ради строительства ЖК вырубили лес «Это были легкие города»: в Екатеринбурге ради строительства ЖК вырубили лес
От теории к практике: как квартира-студия угодила всем и сразу От теории к практике: как квартира-студия угодила всем и сразу
Как траншевая ипотека экономит семейный бюджет Как траншевая ипотека экономит семейный бюджет
Турниры отменили — стадионы остались. Что будет с недостроенными объектами? Турниры отменили — стадионы остались. Что будет с недостроенными объектами?
Читать все статьи
По субъектам области
  • Новоуральск
  • пос. Садовый
  • с. Печеркино
  • 20-й кв-л
  • Арти пгт
  • Каменский муниципальный округ
  • Арамиль
  • Верхняя Тура
  • с. Писанец
  • Североуральск
  • 45-й кв-л
  • Вторчермет жилрайон
  • с. Горный Щит
  • Верх-Нейвинский пгт
  • Красноуфимск
  • пос. Покровское-1
  • пос. Пионерский
  • Черемушки мкр
  • Красный Камень мкр
  • пос. Мичуринский
  • пос. Юшала
  • Пионерский пгт
  • с. Ляпуново
  • пос. Буланаш
  • Кушвинский городской округ
  • Артемовский городской округ
  • Краснотурьинск
  • Мартюш пгт
  • пос. Новоуткинск
  • Асбестовский городской округ
  • 8-й мкр
  • Екатеринбург
  • Староуткинск пгт
  • Верхнее Дуброво пгт
  • Тугулым пгт
  • Муринские Пруды мкр
  • Свободный пгт
  • Бисерть пгт
  • пос. Левиха
  • Красноуфимский муниципальный округ
  • пос. Октябрьский
  • Белоярский муниципальный округ
  • Калиновское с/пос
  • с. Коптелово
  • пос. Асбест
  • Верхняя Пышма
  • с. Николо-Павловское
  • Ивдель
  • 14-й кв-л
  • Новый мкр
  • пос. Билимбай
  • Невьянский городской округ
  • Зори мкр
  • с. Косулино
  • пос. Новоасбест
  • Втузгородок жилрайон
  • Качканар
  • пос. Троицкий
  • Арамильский городской округ
  • Новая Ляля
  • с. Елань
  • Тавдинский городской округ
  • Артемовский муниципальный округ
  • Артинский муниципальный округ
  • Березовский городской округ
  • пос. Кузино
  • пос. Калиново
  • пос. Цементный
  • Лесной
  • пос. Бобровский
  • Каменский городской округ
  • с. Знаменское
  • Тавда
  • Туринск
  • пос. Исеть
  • с. Покровское
  • Талица
  • пос. Совхозный
  • Камышлов
  • пос. Новоасбест
  • Реж
  • Михайловск
  • Солнечный жилрайон
  • Зареченское с/пос
  • с. Косулино
  • пос. Заря
  • Пышма пгт
  • Спутник-1 жилой квартал
  • с. Колчедан
  • Зори мкр
  • Екатеринбург муниципальное образование
  • Шаля пгт
  • Культура жилой квартал
  • пос. Белокаменный
  • Сухой Лог
  • Полевской муниципальный округ
  • Карасьеозерский-2 кп
  • пос. Буланаш
  • пос. Зайково
  • д. Курманка
  • 12-й кв-л
  • Камышловский район
  • с. Николо-Павловское
  • Шалинский городской округ
  • с. Патруши
  • Академический мкр
  • Жилой Спутник-1 кв-л
  • Верхние Серги пгт
  • с. Позариха
  • Сухой Лог городской округ
  • Сортировочный жилрайон
  • Нижний Тагил муниципальный округ
  • Волчанск
  • пос. Исток
  • пос. Лосиный
  • пос. Имени Чкалова
  • Кировград
  • пос. Черемухово
  • Широкая Речка мкр
  • пос. Хозспособ
  • Нижний Тагил городской округ
  • Нижние Серги-3 городок
  • Невьянский муниципальный округ
  • Зеленый Бор-2 мкр
  • Атиг пгт
  • Серов
  • Пионерский жилрайон
  • Кольцово жилрайон
  • с. Байкалово
  • Заречный
  • пос. Совхозный
  • Дружинино пгт
  • пос. Монетный
  • Ирбитский район
  • Байкаловский район
  • Елизавет жилрайон
  • пос. Уфимский
  • пос. Большой Исток
  • пос. Покровское-1
  • пос. УАЗ
  • Кировградский городской округ
  • Старый Каменск мкр
  • пос. Красногвардейский
  • Алапаевск муниципальное образование
  • пос. Баранчинский
  • пос. Юшала
  • Талицкий городской округ
  • 3-й кв-л
  • д. Большое Седельниково
  • Натальинск пгт
  • Североуральский городской округ
  • Нижнесергинский район
  • Жилой Лесная сказка кв-л
  • пос. Луговской
  • Шиловский мкр
  • Каменск-Уральский городской округ
  • пос. Вересовка
  • пос. Трубный
  • Пышминский городской округ
  • Среднеуральск муниципальный округ
  • Университетский мкр
  • Лесная сказка жилой квартал
  • Карпинск
  • Ревда
  • Верхняя Пышма городской округ
  • Нижнетуринский муниципальный округ
  • Горноуральский городской округ
  • пос. Прогресс
  • Нижние Серги
  • Нижняя Салда
  • Верхний Тагил
  • Рефтинский пгт
  • Красноуральск
  • Верхняя Синячиха пгт
  • пос. Первомайский
  • 1-й кв-л
  • пос. Калиново
  • пос. Лая
  • пос. Пионерский
  • Октябрьский мкр
  • Химмаш жилрайон
  • пос. Кузино
  • УНЦ мкр
  • пос. Кедровка
  • Заречный городской округ
  • Верхотурье
  • Сысерть
  • Горноуральский муниципальный округ
  • 6А мкр
  • пос. Арамиль
  • Невьянск
  • Алапаевский район
  • 15-й мкр
  • Богданович городской округ
  • с. Камышево
  • Тугулымский муниципальный округ
  • Центральный жилрайон
  • пос. Светлый
  • 2-й мкр
  • с. Петрокаменское
  • пос. Зыряновский
  • пос. Новоуткинск
  • Юго-Западный жилрайон
  • пос. Прогресс
  • Серовский муниципальный округ
  • с. Никольское
  • Трилогия жилой квартал
  • Каменск-Уральский
  • Бараба мкр
  • д. Герасимовка
  • пос. Первомайский
  • Североуральский муниципальный округ
  • ВИЗ жилрайон
  • Малышева пгт
  • 1-й кв-л
  • Культура жилой квартал
  • пос. Билимбай
  • пос. Ключевск
  • пос. Кедровое
  • пос. Ис
  • пос. Левиха
  • пос. Шабровский
  • Уралмаш жилрайон
  • Жилой Лесная сказка кв-л
  • д. Баранникова
  • с. Яр
  • с. Горбуновское
  • с. Клевакинское
  • Нижняя Тура
  • с. Бруснятское
  • Дегтярск
  • Полевской городской округ
  • пос. Бобровский
  • Свердловская область
  • д. Шилова
  • Кировградский муниципальный округ
  • пос. Большой Исток
  • Сибирский мкр
  • пос. Уралец
  • Зеленый Бор-1 мкр
  • с. Балтым
  • пос. Кирпичный
  • 22-й кв-л
  • Светлый мкр
  • Кушва
  • пос. Первомайский
  • пос. Кирпичный
  • Южный жилрайон
  • Уктус жилрайон
  • Среднеуральск городской округ
  • Махнево пгт
  • пос. Двуреченск
  • Солнечный кп
  • пос. Станционный-Полевской
  • Асбест
  • Режевской городской округ
  • с. Филькино
  • Талицкий муниципальный округ
  • с. Ключи
  • пос. Курорт-Самоцвет
  • Верхняя Салда
  • Березовский муниципальный округ
  • 19-й кв-л
  • Ленинский мкр
  • Богданович муниципальный округ
  • Тугулымский городской округ
  • Старая Сортировка мкр
  • с. Камышево
  • Ирбит
  • Красноуфимский район
  • Комсомольский жилрайон
  • Компрессорный жилрайон
  • пос. Полеводство
  • Первоуральск муниципальный округ
  • Эльмаш жилрайон
  • пос. Северка
  • Ачитский городской округ
  • Первоуральск городской округ
  • Дружининское городское поселение
Похожий тип квартиры
  • Все квартиры
  • 3-комнатные
  • 1-комнатные
  • 4-комнатные

Некоторые материалы настоящего раздела могут содержать информацию, запрещенную для детей, не достигших шести лет.

Информация о возрастных ограничениях в отношении информационной продукции, подлежащая распространению на основании норм Федерального закона «О защите детей от информации, причиняющей вред их здоровью и развитию».

О компанииСправочный центрВакансииПрайс-лист
© ООО «Н1.РУ»  Правила использования

Некоторые материалы настоящего раздела могут содержать информацию, запрещенную для детей, не достигших шести лет.

Информация о возрастных ограничениях в отношении информационной продукции, подлежащая распространению на основании норм Федерального закона «О защите детей от информации, причиняющей вред их здоровью и развитию».

Новостройки
Студии
Однокомнатные
Двухкомнатные
Трехкомнатные
Четырехкомнатные
Многокомнатные
Каталоги
Выделение цветом
Спецпредложение
Топ
Турбо
Вторичка
Однокомнатные
Комнаты
Студии
Коттеджи
Дома
Аренда недвижимости
Квартиры
Комнаты
Студии
Коттеджи
Дома
Города
Архангельск
Екатеринбург
Красноярск
Новосибирск
Омск
Пермь
Тюмень
Челябинск
Все города
Карта сайта